Beschrijving
NIEUW TE KOOP!!!
Parkstraat 27 te Julianadorp
De oude dorpskern van Julianadorp heeft iets bijzonders. Een aantrekkingskracht die lastig te vangen is in woorden, maar die je direct voelt zodra je er rondloopt. Toch wagen we een poging. Hier vind je de échte karakteristieke dorpswoningen, zoals je ze kent van oude prenten: charmant, doorleefd en vol verhalen. Huizen met meer dan 100 jaar geschiedenis, woningen waarin je niet alleen woont, maar die je elke dag opnieuw beleeft.
De Parkstraat. Een plek waar de tijd niet heeft stilgestaan, maar waar deze woning zelf opvallend trouw is gebleven aan haar karakter. Sinds 1962 was dit het thuis van de laatste bewoner, een periode van meer dan 60 jaar. Dat zegt eigenlijk alles over het woongenot van de locatie. In de tussentijd veranderde de omgeving: het dorpsplein groeide, weilanden maakten plaats voor een nieuwe woonwijk. Ontwikkelingen die het dorp hebben verrijkt. En dit huis? Dat bleef grotendeels zoals het ooit bedoeld was. Want wat goed is, blijft goed.
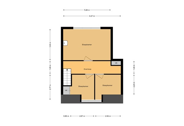
Op een fraaie kavel van 207 m² eigen grond mogen wij deze karakteristieke dorpswoning aanbieden, met circa 90 m² woonoppervlak, drie slaapkamers, ruime berg- en hobbyruimtes en een heerlijke tuin van ruim 20 meter diep. Een plek met potentie, klaar voor een nieuwe fase. Na ruim zes decennia vol woonplezier is het moment aangebroken voor een nieuwe eigenaar. Dat maakt het voor ons meer dan bijzonder om op zoek te gaan naar een nieuwe eigenaar. Iemand die de charme en geschiedenis weet te waarderen, en tegelijkertijd de visie heeft om deze woning met respect voor haar verleden naar het heden te brengen. Wie weet begint hier wel het volgende hoofdstuk, voor opnieuw 60 jaar woonplezier, op een van de mooiste plekjes van Julianadorp.
--------
De richtprijs van deze woning bedraagt € 275.000 kosten koper. Gezien de huidige woningmarkt is het niet uitgesloten dat de uiteindelijke verkoopprijs hoger uitvalt. Een bezichtiging vraag je makkelijk aan via Funda of onze website. Bij een online bezichtigingsaanvraag krijg je direct een link toegestuurd per mail en/of sms waarmee je zelf in onze agenda een afspraak in kunt plannen. Uiteraard kan je ons ook altijd bellen om een bezichtiging in te plannen!
--------
De Parkstraat te Julianadorp is een lommerrijke en groene straat gelegen nabij de oude dorpskern van Julianadorp. De omgeving ademt de sfeer van het buitenleven ondanks dat je alle gewenste faciliteiten als (vers)winkels, supermarkten, restaurants, kinderopvang en (basis)scholen op loopafstand vindt. Duinen en strand zijn in Julianadorp natuurlijk nooit ver weg en goed aan te fietsen, zo ook de bekende bloembollenvelden. Vanaf de Parkstraat rij je ook zo via de Schoolweg richting de Rijkweg N9 die naar Den Helder (10 min) en Alkmaar (35 min) leidt.
LAAN MAKELAARS
voor de Kop van Noord-Holland
koop- en verkoopbegeleiding
van bestaande woningen