Beschrijving
NIEUW TE KOOP!!!
Mr. J. Henderikxstraat 6 te Julianadorp
Het nieuwe jaar kunnen wij niet beter aftrappen met de verkoop van deze gave, dijk van een woning. Met een gebruiksoppervlak van maar liefst meer dan 150m2 biedt deze woning met 4 slaapkamers én inpandige garage meer dan voldoende ruimte om aan al je wensen te voldoen. En het mooie van alles? Je hoeft hier helemaal niet veel meer aan te doen. De woning is zonder grote aanpassingen direct te betrekken, duurzaam, sfeervol en keurig in onderhoud. Recent voorzien van vloerverwarming op de woonverdieping met daarop een PVC-vloer gelegd in een Hongaarse punt, deels nieuw HR glas in 2023, nieuwe kunststof openslaande deuren in 2024 en airco units in 2025 met een fraai energielabel B als resultaat.
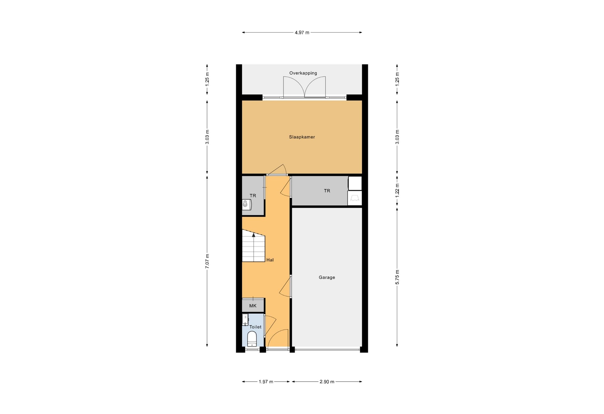
Een woning met mogelijkheden door de ruime inpandige garage en de extra slaapkamer op de begane grond met alle voorzieningen om hier nog aan de slag te gaan met water, afvoeren voor het realiseren van een thuiswerkplek, bijvoorbeeld in de vorm van een salon, of een zelfstandige studio in de vorm van een slaap- en badkamer. De opties zijn talrijk en velen daarvan al eens uitgevoerd in woningen van dit type die wij voorbij hebben zien komen. Wij laten je dan ook graag deze woning zien en praten je bij over alles wat deze woning nu al biedt en waar je jouw toekomstplannen nog de vrije loop kan laten!
--------
Mr. J. Henderikxstraat 6 te Julianadorp wordt aangeboden met een richtprijs van € 389.000 k.k. Gezien de huidige woningmarkt is het niet uitgesloten dat de uiteindelijke verkoopprijs hoger uitvalt. Een bezichtiging plan je makkelijk (en het snelst) zelf in door een bezichtigingsaanvraag via Funda. Je ontvangt van ons dan gelijk een email en sms met de mogelijke tijdstippen waarop je kan reserveren. Uiteraard kan je ook contact opnemen met ons kantoor.
--------
Mr. J. Henderikxstraat 6 is gelegen nabij de oude dorpskern van Julianadorp. Dit is een lommerrijke, rustige en groene woonomgeving met toch alle gewenste faciliteiten binnen handbereik. Op wandelafstand van de woning vind je onder andere het centrum van de oude dorpskern 't Loopuytpark met diverse verswinkels, restaurants maar ook een huisartsenpraktijk, fysiotherapie en tandarts. Direct naast het oude centrum gelegen is er een nieuw winkelcentrum gerealiseerd met diverse supermarkten, een slagerij, drogisterij en kledingwinkels. Kinderopvang, basis- en middelbare scholen zijn zowel wandelend als op de fiets goed te bereiken net zoals diverse sportfaciliteiten, strand en duinen.
--------
INDELING:
--------
Parkeren doe je op eigen grond, direct voor de woning of natuurlijk in de garage. Je komt de woning binnen in de hal met meterkast, het toilet en diverse bergruimtes. Vanuit de hal bereik je inpandig de garage en de (slaap)kamer op de begane grond met dubbel openslaande tuindeuren (kunststof) naar de achtertuin. De tuin achter de woning is ca. 50m2 groot, onderhoudsvriendelijk en voorzien van degelijk schuttingwerk met een achterom. Op de eerste verdieping vind je een riante, sfeervolle living met aan de voorzijde een moderne, open inbouwkeuken, in een U-opstelling geplaatst en voorzien van al het gewenste inbouwapparatuur. De woonkamer is tuingericht aan de achterzijde, voorzien van een sfeervolle haard en ruim balkon. De gehele living heeft een strakke en sfeervolle afwerking met op de vloer een PVC in Hongaarse punt gelegd met daaronder vloerverwarming. De tweede verdieping is ingedeeld met 3 prima slaapkamers, waarvan de hoofdslaapkamer over de gehele breedte van de woning, en een ruime, geheel betegelde badkamer met dubbele wastafel, douche en tweede toilet. De overloop biedt 2 praktische vaste kasten en de twee slaapkamers aan de achterzijde toegang tot een tweede balkon.
Geniet jij binnenkort van al het moois deze woning je te bieden heeft? Maak dan snel een afspraak om te komen bezichtigen! Een bezichtiging plan je makkelijk (en het snelst) zelf in door een bezichtigingsaanvraag via Funda. Je ontvangt van ons dan gelijk een email en sms met de mogelijke tijdstippen waarop je kan reserveren. Uiteraard kan je ook contact opnemen met ons kantoor.
LAAN MAKELAARS
voor de Kop van Noord-Holland
koop- en verkoopbegeleiding
van bestaande woningen