Beschrijving
NIEUW TE KOOP!!!
Eikenhout 14 te Julianadorp
Een geweldige woning. Geweldig qua ruimte, met ruim 180m2 gebruiksoppervlak. Geweldig qua duurzaamheid, met een A++ label. Geweldig qua locatie, aan de buitenranden van woonpark 't Laar, in het groen van deze bosrijke omgeving. Een op en top gezinswoning voorzien van 4 ruime slaapkamers waar een vijfde slaapkamer zo te realiseren valt. Slechts 2,5 jaar geleden opgeleverd, vorig jaar een dakkapel op zolder, dus voorzien van al het comfort en luxe die je mag verwachten van een 'nieuwe' woning. Volledig gestukt op de uitgebouwde begane grond, PVC visgraatvloeren met vloerverwarming, een, door de aanbouw, meer dan riante woonkeuken, gescheiden van de woonkamer door middel van stalen taatsdeuren. Visgraat vloeren, ook met vloerverwarming, op de eerste verdieping en een moderne, geheel betegelde badkamer met inloopdouche en tweede toilet. Maar bovenal, wat staat de woning daar mooi! Een uitstekende keuze qua materialen en kleuren voor deze omgeving. Statig en toch modern. Een plaatje!
Ben jij op zoek naar een geweldige 2-1 kapwoning met garage. Groots, duurzaam, onderhoudsvriendelijk en super gelegen? Dit is je kans!
--------
Eikenhout 14 te Julianadorp wordt aangeboden met een richtprijs van € 615.000 kosten koper. De woning staat op een kavel van 299m2 eigen grond en biedt een woonoppervlak van 165m2 exclusief een garage van 17,5m2, in totaal 690m3 inhoud. Gezien de huidige woningmarkt is het niet uit te sluiten dat de uiteindelijke verkoopprijs hoger uitvalt. Bezichtigingen vraag je aan via ons kantoor of de bezichtigingsknop op Funda. Bezichtigingen worden op volgorde van binnenkomst ingepland. De oplevering kan spoedig, toch in overleg, plaatsvinden.
--------
Eikenhout 14 te Julianadorp is gelegen in Woonpark 't Laar. Een nieuwbouwwijk in een bestaande groene omgeving aan de buitenranden van Julianadorp. Een park-achtige omgeving grenzend aan de Julianadorper bollenvelden daar is waar de wijk zich bevindt. Enkele fietsminuten van winkelcentra, kinderopvang en (basis)scholen een kwartier van duinen en strand. De uitvalsweg N9 richting Alkmaar vind je op minder dan 5 minuten rijden. Zeer centraal, groen en ontspannen wonen.
--------
INDELING
--------
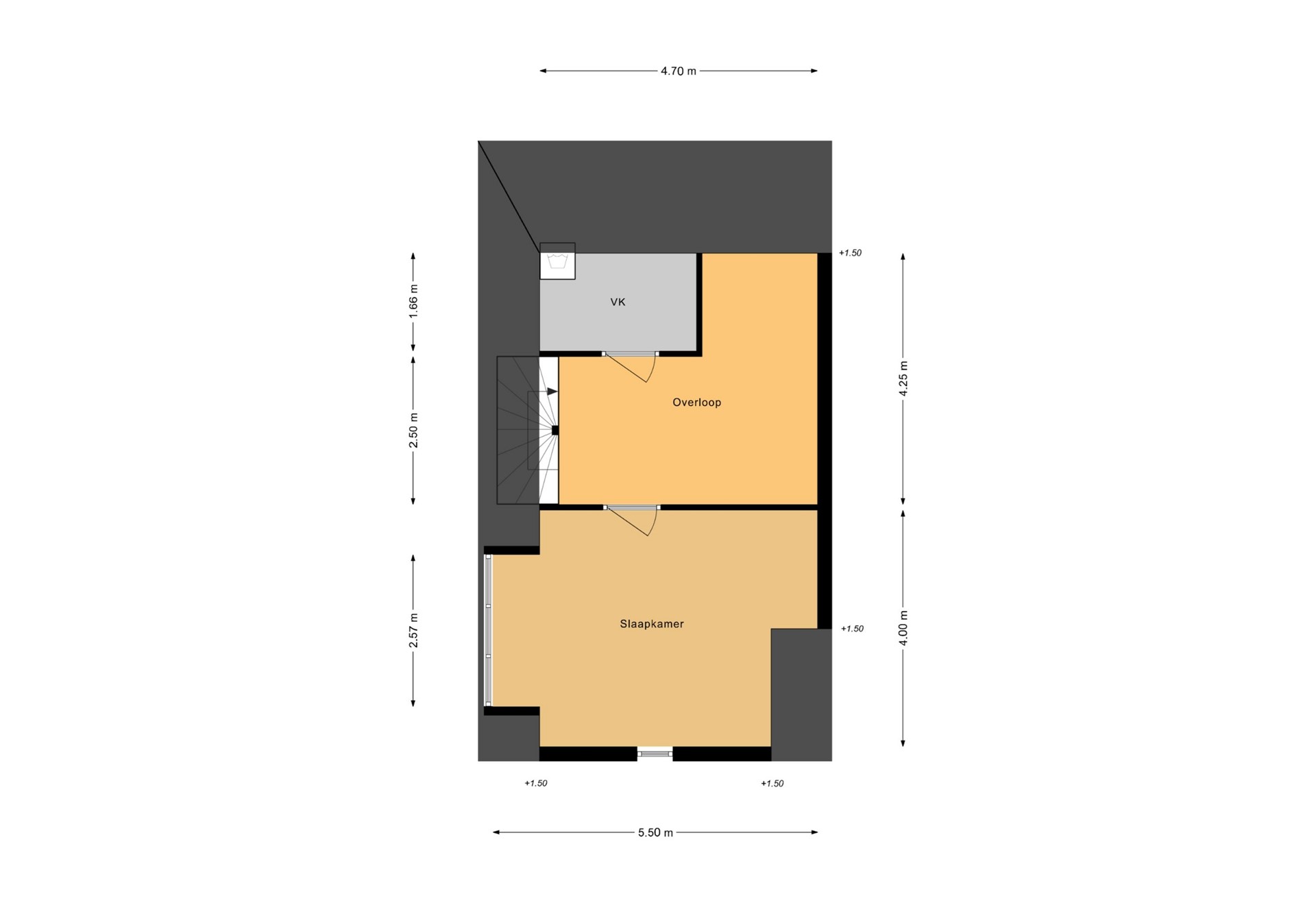
Parkeren op eigen oprit, achterom naar de tuin, entree woning. Entree in de hal met meterkast, toilet en trapopgang naar de verdieping. Vanuit de hal kom je in de royale, uitgebouwde living met aan de voorzijde de zithoek en aan de tuinzijde (voorzien van dubbel openslaande tuindeuren) een riante woonkeuken met kookeiland en al het gewenste inbouwapparatuur. Zithoek en keuken worden van elkaar gescheiden door zwart stalen taatsdeuren. Op de eerste verdieping bereik je vanaf de overloop 3 prima slaapkamers een volledig betegelde badkamer met wastafelmeubel, inloopdouche en tweede toilet. De tweede verdieping biedt een ruime vierde slaapkamer voorzien van een recent geplaatst dakkapel, een zeer ruime overloop (mogelijk vijfde slaapkamer), technische ruimte en verrassend hoge nok waar met gemak nog een bergvliering in gemaakt kan worden.
Is je interesse gewekt? Maak dan snel een afspraak om deze woning samen met ons te bezichtigen.
LAAN MAKELAARS
voor de Kop van Noord-Holland
koop- en verkoopbegeleiding
van bestaande woningen