Beschrijving
NIEUW TE KOOP!!!
Stakman Bossestraat 3 te Den Helder
Starters opgelet! Twee onder één kapwoning in autoluwe straat in de Visbuurt. Deze woning biedt een doorzon woonkamer met schouw en een eenvoudige keuken in de aanbouw. Op de verdieping zijn er twee slaapkamers, aan de voorzijde de hoofdslaapkamer, doordat deze de hele breedte van de woning beslaat is deze riant te noemen. De tweede slaapkamer aan de achterzijde kan perfect dienen als logeer- of kinderkamer. De woning beschikt over een stadse binnentuin en een praktische berging.
Zoekt u een woning waarbij u centraal woont, nabij voorzieningen als het stadcentrum en Willemsoord, dan kan deze woning wellicht perfect voor u zijn. Wij treffen u graag bij een bezichtiging.
--------
De Stakman Bossestraat 3 te Den Helder wordt u aangeboden met een richtprijs van € 219.000 k.k. U kunt zich vanaf heden aanmelden voor een bezichtiging. Bezichtigingen worden ingepland op volgorde van binnenkomst. De woning is recentelijk leeg komen te staan en kan dus per direct worden aanvaard.
--------
De Stakman Bossestraat is gelegen in de Visbuurt, de woning is op korte afstand gelegen van het stadshart, het centraal station, uitgaanscentrum Willemsoord en de Marine sportvelden. In deze omgeving zijn supermarkten, scholen en kinderopvang allemaal op loopafstand.
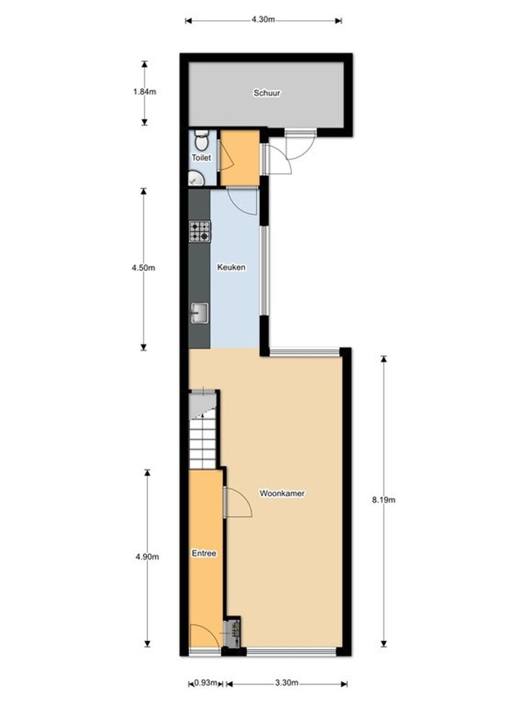
INDELING: entree, hal met meterkast en trapopgang, doorzon woonkamer, keuken in de aanbouw, hal met toilet en toegang tot tuin met berging.
Verdieping: overloop met toegang tot eerste slaapkamer en badkamer. Via de badkamer is de tweede slaapkamer te bereiken.
Bergzolder boven slaapkamers.