Beschrijving
NIEUW TE KOOP!!!
Ruyghweg 154 te Den Helder
Aan de centraal gelegen Ruyghweg in Den Helder staat deze karakteristieke en sfeervolle jaren 30 erkerwoning met een zonnige tuin op het zuiden. De uitgebouwde tussenwoning beschikt over een royale leefruimte met luxe keuken voorzien van kookeiland en vloerverwarming. Er is volop ruimte voor zowel een eet- als zithoek. De leefruimte is afgewerkt met strakke wanden, een PVC visgraatvloer en een vernieuwde trap naar de eerste verdieping.
Op de eerste verdieping komt het karakter van de woning mooi terug, met authentieke paneeldeuren en een Frans balkon aan de voorzijde. Hier bevinden zich twee keurig afgewerkte slaapkamers met laminaatvloeren en strakke wandafwerking. De moderne badkamer is ruim opgezet en voorzien van een inloopdouche, wastafelmeubel, tweede toilet en vloerverwarming.
De tweede verdieping is via een vaste trap bereikbaar en bestaat uit een ruime zolderkamer met dakkapel en dakraam, wat zorgt voor veel lichtinval. Deze verdieping is ingericht als derde slaapkamer en afgewerkt met een laminaatvloer en gestuukte wanden. Daarnaast is er praktische bergruimte aanwezig in de vorm van een vliering en een vaste kast.
Achter de woning ligt de achtertuin op het zonnige zuiden. De tuin beschikt over een berging van circa 16 m² met elektra en wateraansluiting met gootsteen. De tuin en woning zijn bereikbaar via een achterom, middels de naastgelegen steeg.
Nieuwsgierig geworden? Maak dan een afspraak voor een bezichtiging en ervaar zelf de ruimte en sfeer van deze woning
--------
De Ruyghweg 154 te Den Helder wordt aangeboden met een richtprijs van € 320.000 k.k. Een bezichtiging plan je makkelijk (en het snelst) zelf in door een bezichtigingsaanvraag via Funda. Je ontvangt van ons dan gelijk een email en sms met de mogelijke tijdstippen waarop je kan reserveren. Uiteraard kan je ook contact opnemen met ons kantoor.
--------
De Ruyghweg is een centraal gelegen straat in Den Helder die de Visbuurt en Vogelbuurt van elkaar scheidt. Wonen op de Ruyghweg is wonen nabij het centrum, het centraal station, maar ook supermarkten, basisscholen en kinderopvang zijn vanaf dit adres op loopafstand. Vanaf de woning ben je binnen enkele minuten op de fiets bij de (marine)haven en het gezellige Willemsoord. Uitvalsweg N9 richting Alkmaar ligt om de hoek.
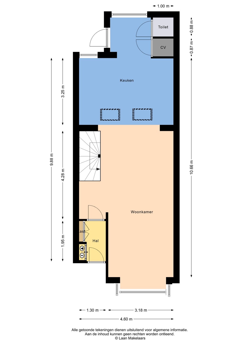
INDELING:
Begane grond: Voortuin, entree, hal met meterkast en garderobe, woonkamer met straatgerichte zithoek, eethoek en tot slot de uitbouw met luxe keuken, CV kast en toilet.
Verdieping: overloop met opstelling voor het witgoed en vaste trap naar tweede verdieping, twee slaapkamers en badkamer.
2e Verdieping: derde (slaap)kamer met dakkapel, bergruimte en vliering.