Beschrijving
NIEUW TE KOOP!!!
P. Janssoonstraat 7 te Den Helder
Starters op de woningmarkt opgelet! Een werelds appartement waar ruim 15 jaar heerlijk in is gewoond en die door de huidige eigenaar na de verhuizing piekfijn is gemoderniseerd zodat jij hier zonder grote aanpassingen direct in kunt trekken. En dat kan al snel. Het appartement is per direct beschikbaar, zo snel als jij er klaar voor bent en de notaris tijd heeft. Wij richten ons op een overdracht nog dit jaar dus kom snel kijken en sla die mooie slag op de Helderse woningmarkt.
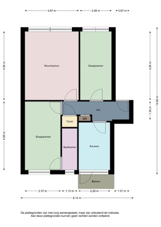
Het appartement is gelegen op de eerste verdieping van een complex met garages en de bergingen op de begane grond en daarboven 3 woonlagen. Het appartement biedt ca. 63m2 aan woonruimte, 2 slaapkamers en een balkon aan de westkant (achterzijde). Toilet, keuken en badkamer zijn om door een ringetje te halen en helemaal van nu. Op de vloer vind je een PVC visgraat vloer. Bij het appartement behoort een berging in het souterrain.
Het appartement maakt onderdeel uit van een gezonde VVE. De maandelijkse bijdrage bedraagt € 294,77 maar let op! Hier zitten naast (buiten)onderhoud, de opstalverzekering ook de stookkosten bij inbegrepen.
--------
P. Janssoonstraat 7 te Den Helder wordt aangeboden met een richtprijs van € 197.500 k.k. Gezien de huidige woningmarkt is het niet uitgesloten dat de uiteindelijke verkoopprijs hoger uitvalt. Een bezichtiging vraag je aan via ons kantoor en deze worden op volgorde van binnenkomst ingepland.
--------
Het appartement ligt in een rustige woonwijk op steenworp afstand het centrum van de Schooten. Hier vind je een diversiteit aan appartementen en gezinswoningen, deels huur en deels koopwoningen. Het appartement is uitermate goed gelegen op korte afstand van het winkelcentrum, MFC 'de Boerderij', diverse basisscholen en kinderopvang. Alle noodzakelijke faciliteiten als ook het openbaar vervoer zijn in de buurt. De bushalte op loopafstand en treinstation Den Helder Zuid, evenals woonboulevard Ravelijncenter, op 5 minuten fietsen.
LAAN MAKELAARS
voor de Kop van Noord-Holland
Koop- en verkoopbegeleiding
ven bestaande woningen