Beschrijving
        
            NIEUW TE KOOP!!!
Krugerstraat 25 te Den Helder
 Via een bezichtigingsaanvraag op Funda plan je gemakkelijk zelf je bezichtiging in! Ieder moment van de dag!
Gelegen onder de rook van het centrum en op loopafstand van de Noordzeedijk en Singel mogen wij jullie deze ruime (ca. 100m2) gezinswoning aanbieden waar de laatste bewoners tig jaren lang met heel veel plezier hebben gewoond. Een typische jaren '30 erkerwoning, solide gebouwd op eigen grond en voorzien van hardhouten kozijnen rondom, op diverse punten gemoderniseerd, volledig voorzien van dubbelglas, dakisolatie en centrale verwarming. Een hele fijn uitstraling mede door het balkon aan de voorzijde. Karakteristiek, ruim en altijd netjes onderhouden. Een ideale start op de woningmarkt voor de starter die op zoek is naar een plek met ruimte om te groeien en jarenlang woonplezier te ervaren. De woning is aan een parallel gelegen straatje gelegen van de Krugerstraat waardoor je een voor de deur een rustig straatje met parkeergelegenheid treft.  
--------
Krugerstraat 25 te Den Helder wordt aangeboden met een richtprijs van € 230.000 k.k. Gezien de huidige woningmarkt is het niet uitgesloten dat de uiteindelijke verkoopprijs hoger uitvalt. Een bezichtiging plan je makkelijk (en het snelst) zelf in door een bezichtigingsaanvraag via Funda. Je ontvangt van ons dan gelijk een email met de mogelijke tijdstippen waarop je kan reserveren. Uiteraard kan je ook contact opnemen met ons kantoor. 
--------
De Krugerstraat leidt je vanaf de binnenstad richting de Singel en scheidt de Indische buurt met de van Galenbuurt. Het is gelegen nabij het vernieuwde centrum van Den Helder, het Stadspark en de Noordzeedijk. Een rustige woonomgeving met alle noodzakelijke faciliteiten in de directe omgeving. Hier vind je vele woningen met de kenmerkende uitstraling van de vooroorlogse bouwperiode. Een omgeving waar jong én oud zich goed kan vinden. Goed aan te fietsen is zowel de (marine)haven als ook de veerboot naar Texel en het Noord-West ziekenhuis.
--------
INDELING
--------
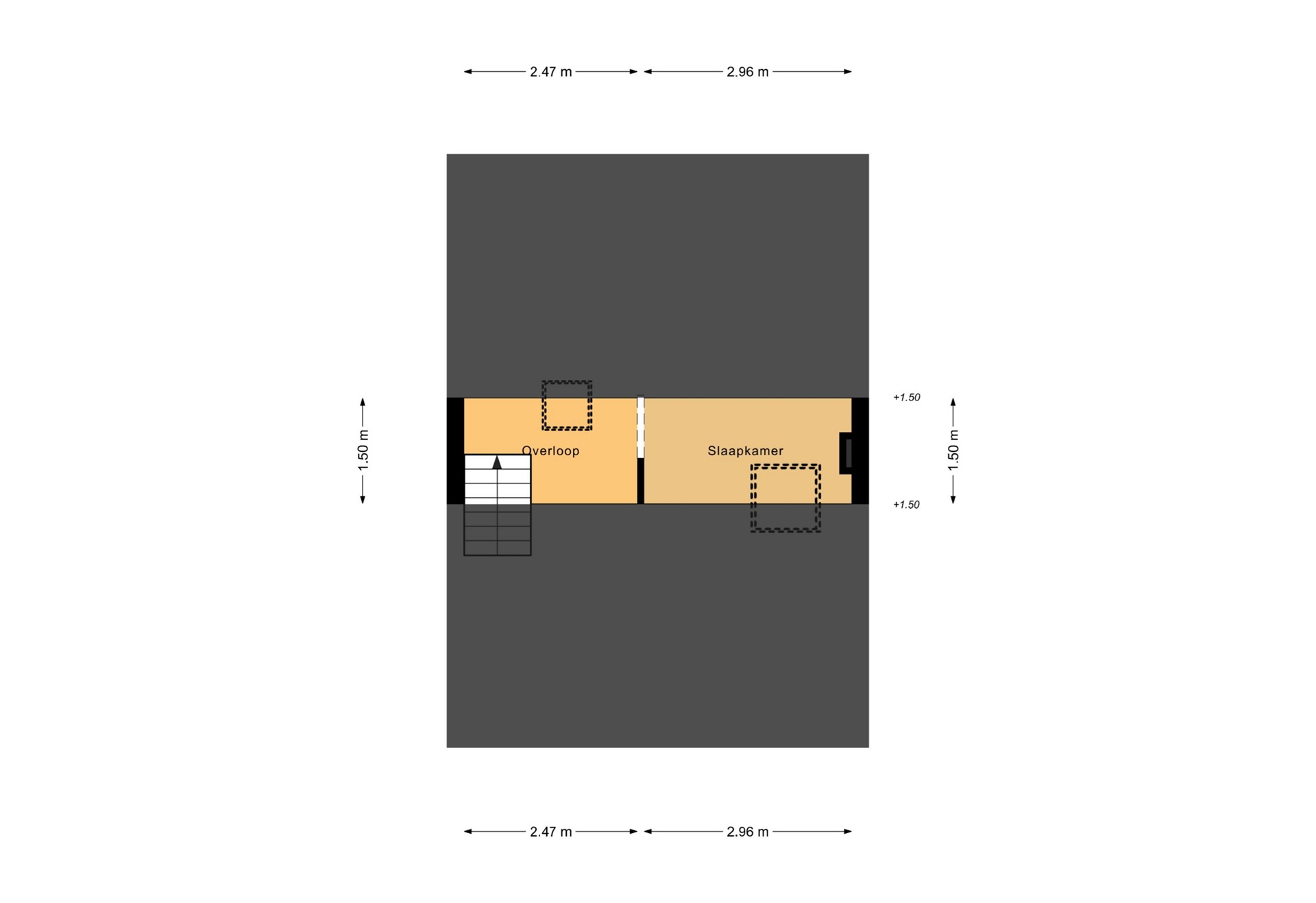
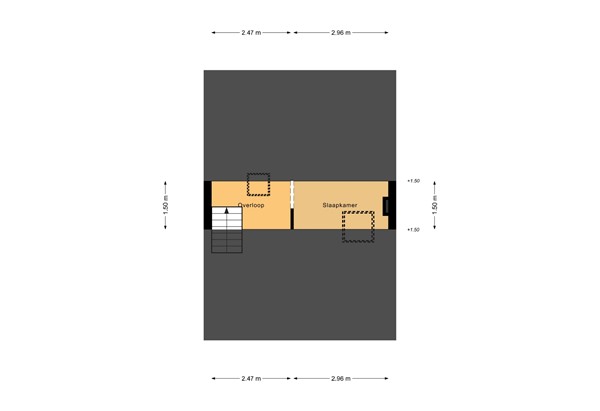
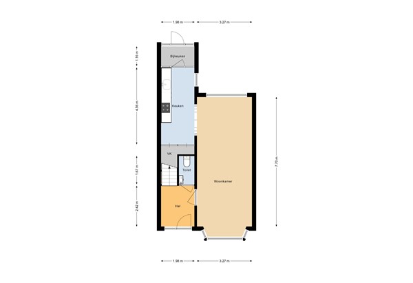
Voortuin, entree in de hal met meterkast, trapopgang naar de verdieping en het toilet. Vanuit de hal kom je in de ruime, sfeer- en daglichtvolle woonkamer met aan de voorzijde een erker. Aan de achterzijde vind je een ruime, half-open keuken die deels in de aanbouw doorloopt met aansluitend een hal/bijkeuken met de aansluitingen voor het witgoed en toegang tot de achtertuin. De stadstuin achter de woning is grotendeels bestraat met ruimte voor beplanting en voorzien van deugdelijk schuttingwerk. Achterin de tuin staat een ruime berging over de gehele breedte met achterom. Op de eerste verdieping vind je 3 prima slaapkamers waarvan één slaapkamer met toegang tot het balkon aan de voorzijde en één slaapkamer met toegang tot de vaste trap naar de tweede verdieping. Op de eerste verdieping bevindt zich ook de moderne, frisse badkamer met ligbad, wastafelmeubel, douche en tweede toilet. De badkamer wordt mede geventileerd door een raam dat open kan. De tweede verdieping biedt tal van mogelijkheden voor een extra slaap- of logeerkamer, werkkamer of een praktische inpandige bergruimte. Het dak is van binnenuit geïsoleerd zodat je jouw fantasie de vrije loop kunt laten voor alle mogelijkheden. 
Ben je op zoek naar een serieuze (door)start op de woningmarkt in een woning met zo'n 100m2 aan woonoppervlak? Plan dan snel een afspraak in om te komen kijken!
LAAN MAKELAARS
voor de Kop van Noord-Holland
koop- en verkoopbegeleiding
van bestaande woningen