Beschrijving
NIEUW TE KOOP!!!
Jan Verfailleweg 64 te Den Helder
Aan de voet van de duinen bevinden zich diverse fraaie appartementencomplexen die bijzonder populair zijn onder starters. In één van deze geliefde complexen mogen wij momenteel een leuk en goed gelegen appartement aanbieden.
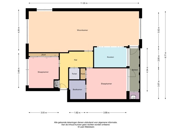
Het appartement is gelegen op de derde woonlaag en beschikt over een zeer ruim bemeten woonkamer met een laminaatvloer en nette wandafwerking. De open keuken is reeds gerealiseerd en uitgevoerd in een praktische hoekopstelling, voorzien van een inbouwkoelkast met vriezer, oven en gaskookplaat.
Verder zijn er twee slaapkamers aanwezig. De grootste slaapkamer biedt directe toegang tot de badkamer, welke is ingericht met een douche, wastafel en witgoedaansluiting. De tweede slaapkamer is eveneens van goed formaat en uitstekend geschikt als werk- of hobbykamer.
Aan de noordwestzijde bevindt zich een balkon en in het souterrain beschikt het appartement over een ruime berging, ideaal voor fietsen en extra opslag.
--------
Jan Verfailleweg 64 te Den Helder wordt aangeboden met een richtprijs van € 219.000 k.k. Gezien de huidige woningmarkt is het niet uitgesloten dat de uiteindelijke verkoopprijs hoger uitvalt. Een bezichtiging plan je makkelijk (en het snelst) zelf in door een bezichtigingsaanvraag via Funda. Je ontvangt van ons dan gelijk een email en sms met de mogelijke tijdstippen waarop je kan reserveren. Uiteraard kan je ook contact opnemen met ons kantoor.
--------
De Jan Verfailleweg in Den Helder is gelegen nabij het winkelhart van Nieuw Den Helder als ook kustdorp Huisduinen. Beiden zijn met een goede wandeling of op de fiets te bereiken. Vanuit het appartement loop of fiets je zo het duingebied in richting Huisduinen, de dijk en het Huisduinerstrand en met 15 minuten fietsen sta je midden in het centrum van Den Helder. Een fijne, centrale ligging met vele faciliteiten binnen handbereik en zowel natuur (bos, duinen, strand) als ook cultuur (Fort Kijkduin, Atlantikwall) om de hoek.
Indeling:
entree complex, trappenhuis en brievenbussen.
entree apppartement, hal met meterkast en toilet, woonkamer met open keuken en balkon, twee slaapkamers en badkamer.