Beschrijving
NIEUW TE KOOP!!!
Hendrik Broertjesstraat 21 Den Helder
Zonder gedoe heerlijk wonen! Dat doe je in deze riante (145m2) gezinswoning met 4 slaapkamers en de tuin op het zuiden in de Schooten. Gelegen aan een groenplantsoen, genoeg parkeerruimte voor de woning en op wandel- fietsafstand van alle gewenste voorzieningen waaronder NS station Zuid. Een ideale thuisbasis waar je ook echt thuiskomt en jarenlang plezier van gaat beleven. Qua ruimte kan je bijna niet verbeteren in dit segment van eengezinswoningen.
Deze woning betrek je zonder grote aanpassingen omdat de huidige eigenaar de laatste jaren al veel voor je heeft gedaan. Zo is de begane grond vergroot door middel van een erker aan de voorzijde, zijn er in de achtergevel dubbel openslaande tuindeuren geplaatst die uitkomen in een gave en solide veranda. De standaard afgesloten keuken is opengebroken en ingericht met een moderne inbouwkeuken en ook het sanitair is de afgelopen jaren vernieuwd. Een ruime, moderne badkamer voorzien van vloerverwarming die doorloopt in de wand.
Ook aan duurzaamheid is natuurlijk gedacht. Naast dakisolatie en het dubbel/HR glas is er ook bodemisolatie aangebracht en zijn er 10 zonnepanelen geplaatst. Hierdoor beschikt de woning over een keurig energielabel B.
--------
H. Broertjesstraat 21 te Den Helder wordt aangeboden met een richtprijs van € 395.000 k.k. Gezien de huidige woningmarkt is het niet uitgesloten dat de uiteindelijke verkoopprijs hoger uitvalt. Een bezichtiging plan je makkelijk (en het snelst) zelf in door een bezichtigingsaanvraag via Funda. Je ontvangt van ons dan gelijk een email en sms met de mogelijke tijdstippen waarop je kan reserveren. Uiteraard kan je ook contact opnemen met ons kantoor.
--------
De woning is gelegen in de geliefde wijk de Schooten. Een woonomgeving waar je alle gewenste faciliteiten binnen handbereik hebt. Winkelcentra, (basis)scholen, kinderopvang, zorg, sport maar ook openbaar vervoer als het station Den Helder Zuid bevinden zich op loop- en/of fietsafstand van de woning. Ook voor een mooie zondagse wandeling of je dagelijkse hardlooprondje hoef je niet ver de buurt uit. Zowel het Rehorstpark als Quelderduijn loop je zo aan. De (marine)haven en de Rijksweg richting Alkmaar-Amsterdam en/of de Afsluitdijk bereik je na ca. 10 autominuten.
--------
INDELING
--------
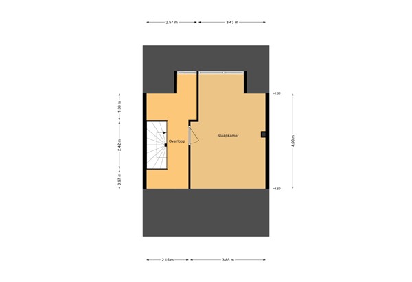
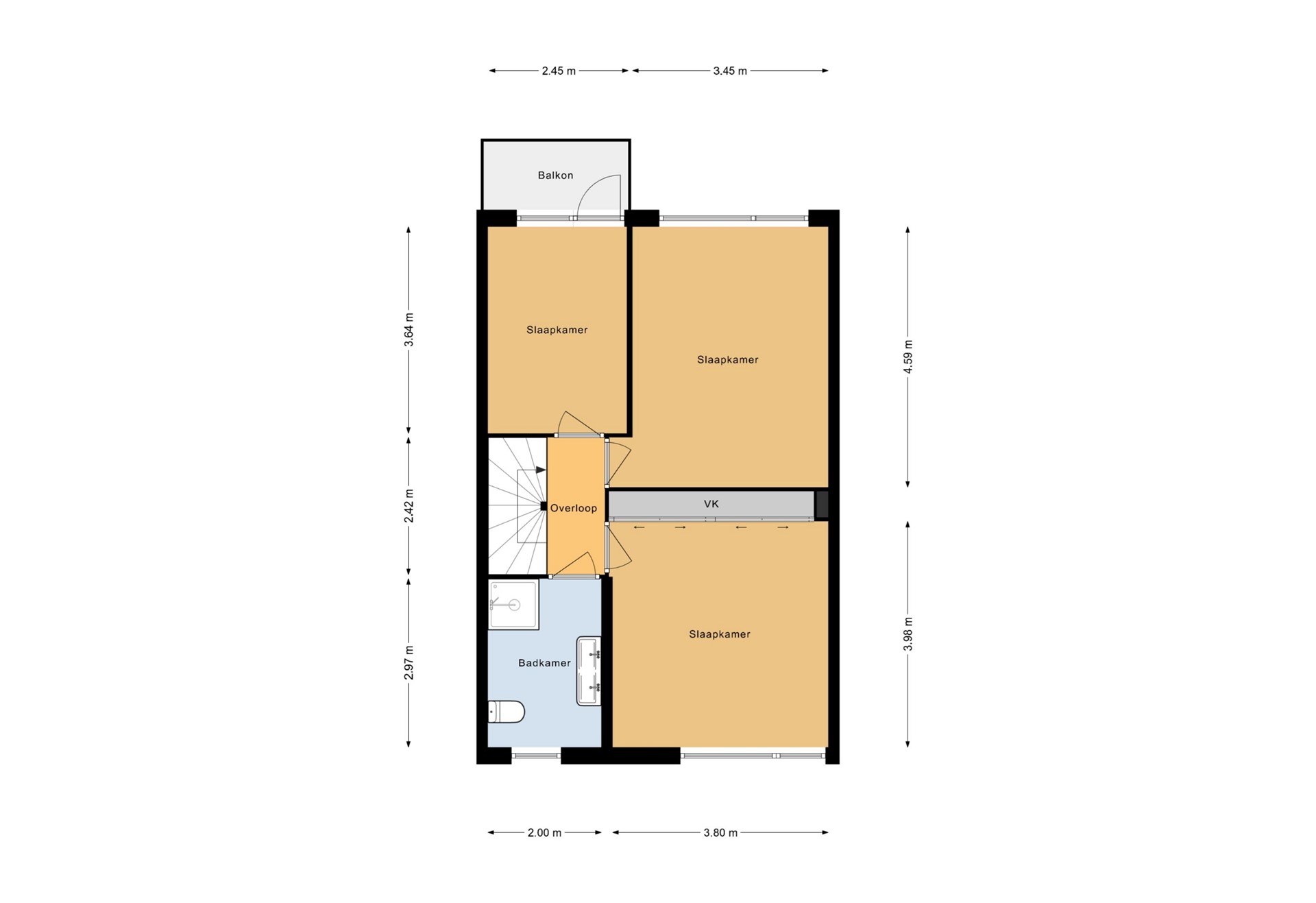
Voortuin, entree woning in een voorportaal met meterkast, aansluitend de hal met het toilet, trapopgang naar de verdieping en ruime bergkast. Vanuit de hal kom je in de door een erker vergrote woonkamer, geheel gestukt en voorzien van een fraaie houtenvloer. In de achtergevel zitten dubbel openslaande tuindeuren naar de veranda en achtertuin op het zuiden. De moderne open keuken is in een hoekopstelling geplaatst en is voorzien van al het gewenste inbouwapparatuur. Op de eerste verdieping bereik je vanaf de overloop 3 ruime slaapkamers voorzien van laminaatvloer, gestukt met daarover (glasvezel) behang. Een van de slaapkamers aan de achterzijde beschikt over een balkon (zuiden). De geheel betegelde, moderne badkamer is volledig ingericht met een breed wastafelmeubel, zeer ruime douche met inbouwkranen en tweede toilet. De badkamer beschikt over vloerverwarming die deels doorloopt in de wand. De royale tweede verdieping biedt een voorzolder met de aansluitingen voor het witgoed, de CV ketel en omvormer van de zonnepanelen. Vanaf de voorzolder kom je in een zeer ruime vierde slaapkamer voorzien van een dakkapel in de breedst mogelijke uitvoering. Zowel achter de knieschotten als ook boven de tweede verdieping vind je nog veel extra bergruimte.
Ben je op zoek naar een heerlijke gezinswoning, veel ruimte en goed gelegen vraag dan nu nog je bezichtiging aan!
LAAN MAKELAARS
voor de Kop van Noord-Holland
koop- en verkoopbegeleiding
van bestaande woningen