Beschrijving
NIEUW TE KOOP!!!
Fazantenstraat 43 te Den Helder
Fijne jaren '30 gezinswoning op een kavel van 159m2 eigen grond, centraal gelegen op korte afstand van het centrum van Den Helder met al haar voorzieningen. Een woning waar je zonder grote aanpassingen zo in kunt trekken. Voorzien van een sfeervolle woonkamer met erker, houten vloer, haard en dubbel openslaande tuindeuren naar de achtertuin. Verder biedt de woning op de begane grond een keurige inbouwkeuken met al het gewenste inbouwapparatuur en op de verdieping een nette badkamer, 3 slaapkamers en daarboven (bereikbaar via een vaste trap) de zolder met tal van uitbreidingsmogelijkheden. Verwarming vindt, door de gehele woning, plaats door middel van CV (2018) en op de begane grond ook door een sfeervolle houtkachel in de evenzo sfeervolle woonkamer. De woning is nagenoeg geheel voorzien van dubbelglas en heeft dak- en bodemisolatie (energielabel D). Het buitenschilderwerk is recent uitgevoerd. Een totaal van ca. 100m2 aan bruikbaar woonoppervlak (NEN meetrapport aanwezig), door de vriendelijke prijsstelling interessant voor de starter, doorstromer én terugstromer. Een mooie kans in de huidige woningmarkt al zeggen wij het zelf!
--------
Fazantenstraat 43 te Den Helder wordt aangeboden met een richtprijs van € 265.000 k.k. Gezien de huidige woningmarkt is het niet uitgesloten dat de uiteindelijke verkoopprijs hoger uitvalt. Een bezichtiging plan je makkelijk (en het snelst) zelf in door een bezichtigingsaanvraag via Funda. Je ontvangt van ons dan gelijk een email en sms met de mogelijke tijdstippen waarop je kan reserveren. Uiteraard kan je ook contact opnemen met ons kantoor.
--------
De Fazantenstraat is gelegen in de jaren '30 wijk 'de Vogelbuurt', een ruim opgezette wijk in een groene en kindvriendelijke omgeving. Op korte afstand van de woning zijn meerdere scholen en kinderopvang te vinden. De woning ligt op loopafstand het vernieuwde stadscentrum en het Centraal Station. Een fijne wandeling maken kan richting Quelderduijn of richting de haven en Willemsoord met o.a. de bioscoop, het theater en diverse horecagelegenheden.
--------
INDELING
--------
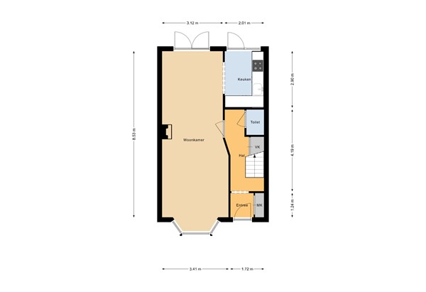
Voortuin, entree in het voorportaal met meterkast, hal met toilet, trapopgang naar de verdieping en toegang tot de woonkamer. Ruime, sfeervolle woonkamer met aan de voorzijde een erker, aan de achterzijde dubbel openslaande tuindeuren en in het hart een sfeervolle haard. De moderne, open inbouwkeuken is in een hoekopstelling geplaatst en voorzien van al het gewenste inbouwapparatuur. Op de eerste verdieping vind je vanaf de overloop de 3 prima slaapkamers, de badkamer met douchecabine en wastafel en de vaste trap naar de tweede verdieping. De zolder is onlangs geheel na-geïsoleerd en voorzien van een nieuwe laminaatvloer. Deze ruimte biedt tal van mogelijkheden. Momenteel vind je er in ieder geval de aansluitingen voor het witgoed. Achter de woning ligt een heerlijk diepe achtertuin op het Zuidoosten. De tuin is achterom bereikbaar en beschikt over een berging.
Zie jij hier jouw nieuwe woning? Maak dan snel een afspraak voor een bezichtiging. Een bezichtiging plan je makkelijk (en het snelst) zelf in door een bezichtigingsaanvraag via Funda. Je ontvangt van ons dan gelijk een email en sms met de mogelijke tijdstippen waarop je kan reserveren.
LAAN MAKELAARS
voor de Kop van Noord-Holland
koop- en verkoopbegeleiding
van bestaande woningen