Beschrijving
BINNEN EN BUITEN GROOTS WONEN!!!
Brikstraat 11 te Den Helder
Met maar liefst circa 190 m² aan inpandige ruimte (conform NEN-meetrapport) en 212m2 aan eigen grond biedt deze woning een zee aan mogelijkheden voor wie ruim wil wonen, leven en groeien. Dit is zo’n huis waar je echt de ruimte hebt om te leven.
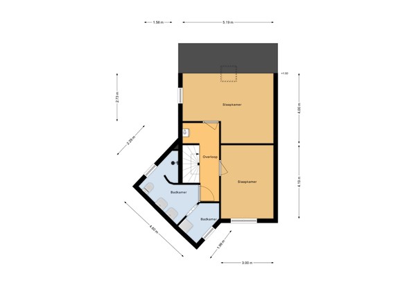
De begane grond is riant uitgebouwd en dat merk je in alles. Een royale woonkamer vormt het hart van het huis, met daarnaast een separate, ruime eetkamer. Dé plek voor lange diners, gezellige avonden met vrienden of simpelweg genieten van het dagelijks leven. De keuken sluit hier naadloos op aan en is uitgevoerd in een praktische U-opstelling, voorzien van alle gewenste inbouwapparatuur en opvallend veel kast- en werkruimte. Wat deze woning extra bijzonder maakt, is de indeling over de verdiepingen. Op zowel de eerste als de tweede verdieping vind je twee ruime slaapkamers én een eigen badkamer. Op de eerste verdieping een complete badkamer met dubbele wastafel, douche en toilet, en op de tweede verdieping een tweede badkamer met douche en wastafel. Ideaal voor grotere gezinnen, gasten of werken aan huis.
De woning beschikt over energielabel B en is nagenoeg volledig uitgevoerd in kunststof kozijnen.
--------
Brikstraat 11 wordt aangeboden met een richtprijs van € 375.000 kosten koper. Een bezichtiging plan je eenvoudig (en het snelst) via Funda. Na je aanvraag ontvang je direct een e-mail en sms met beschikbare tijden om zelf een afspraak in te plannen. Uiteraard kun je ook contact opnemen met ons kantoor. De aanvaarding van de woning kan in overleg en is spoedig mogelijk indien gewenst.
--------
De Brikstraat is gelegen in de wijk Nieuw Den Helder Zuidoost, een locatie die bekend staat om de gunstige ligging ten opzichte van natuur en voorzieningen. Binnen enkele minuten wandel je richting de Helderse Vallei, waar de bollenvelden overgaan in het bosgebied van de Donkere Duinen en uiteindelijk het strand. Een omgeving waar je ieder seizoen opnieuw van geniet. Op korte fietsafstand vind je meerdere basisscholen, kinderopvang, sportfaciliteiten en het vernieuwde winkelcentrum van Nieuw Den Helder met een breed aanbod aan supermarkten en speciaalzaken. Ook het openbaar vervoer is goed bereikbaar; station Den Helder Zuid ligt op korte fietsafstand.
--------
INDELING
--------
Bij binnenkomst ervaar je direct de ruimte die deze woning te bieden heeft. De uitgebouwde begane grond zorgt voor een royale en praktische leefindeling met een ruime woonkamer en een separate eetkamer. De keuken is centraal gelegen en vormt een natuurlijke verbinding tussen beide ruimtes. Vanuit de leefruimte heb je toegang tot de tuin, gelegen op een dubbel perceel van ruim 212 m² eigen grond. Hier is altijd wel een fijne plek te vinden in de zon of juist in de schaduw. De tuin biedt volop ruimte om te ontspannen, te spelen en te genieten van het buitenleven. Daarnaast beschikt de woning over een ruime berging, zowel inpandig als vanuit de tuin bereikbaar, praktisch en veelzijdig in gebruik. Op de eerste verdieping bevinden zich twee ruime slaapkamers en een complete badkamer, voorzien van dubbele wastafel, douche en toilet. De tweede verdieping biedt opnieuw twee volwaardige slaapkamers en een tweede badkamer met douche en wastafel. Deze indeling maakt de woning uitermate geschikt voor grotere gezinnen of voor wie extra kamers wenst, bijvoorbeeld voor werken aan huis.
Ben jij klaar om groots te wonen?
LAAN MAKELAARS
voor de Kop van Noord-Holland
koop- en verkoopbegeleiding
van bestaande woningen