Beschrijving
NIEUW TE KOOP!!!
Bremstraat 185 te Den Helder
Met deze woning heb je een prachtige combinatie in handen: een gewilde twee-onder-een-kapwoning op een fraaie locatie nabij bos, duinen en strand. Daarbij beschikt de woning over maar liefst 159 m² woonoppervlak, een garage én parkeergelegenheid op eigen erf.
De ligging is een groot pluspunt. Vanuit de woning heb je vrij uitzicht op de donkere duinen, waar regelmatig Schotse Hooglanders te zien zijn. Een plek waar rust en natuur samenkomen. De woning is goed onderhouden, maar biedt op onderdelen ruimte voor modernisatie naar eigen smaak. Met een woonoppervlak van 159 m², verdeeld over drie woonlagen, is er in ieder geval geen gebrek aan ruimte. De woning is circa 7 meter breed en beschikt over een doorzon woonkamer met extra zijraam, wat zorgt voor veel lichtinval.
Via de kunststof voordeur kom je in de hal met meterkast, toiletruimte en trapopgang. De woonkamer is voorzien van een parketvloer en een houtkachel (recent niet gebruikt). Dankzij de open indeling staat de keuken in verbinding met de woonkamer, waarbij een kastenwand zorgt voor een praktische scheiding. De keuken is gewrapt en voorzien van inbouwapparatuur.
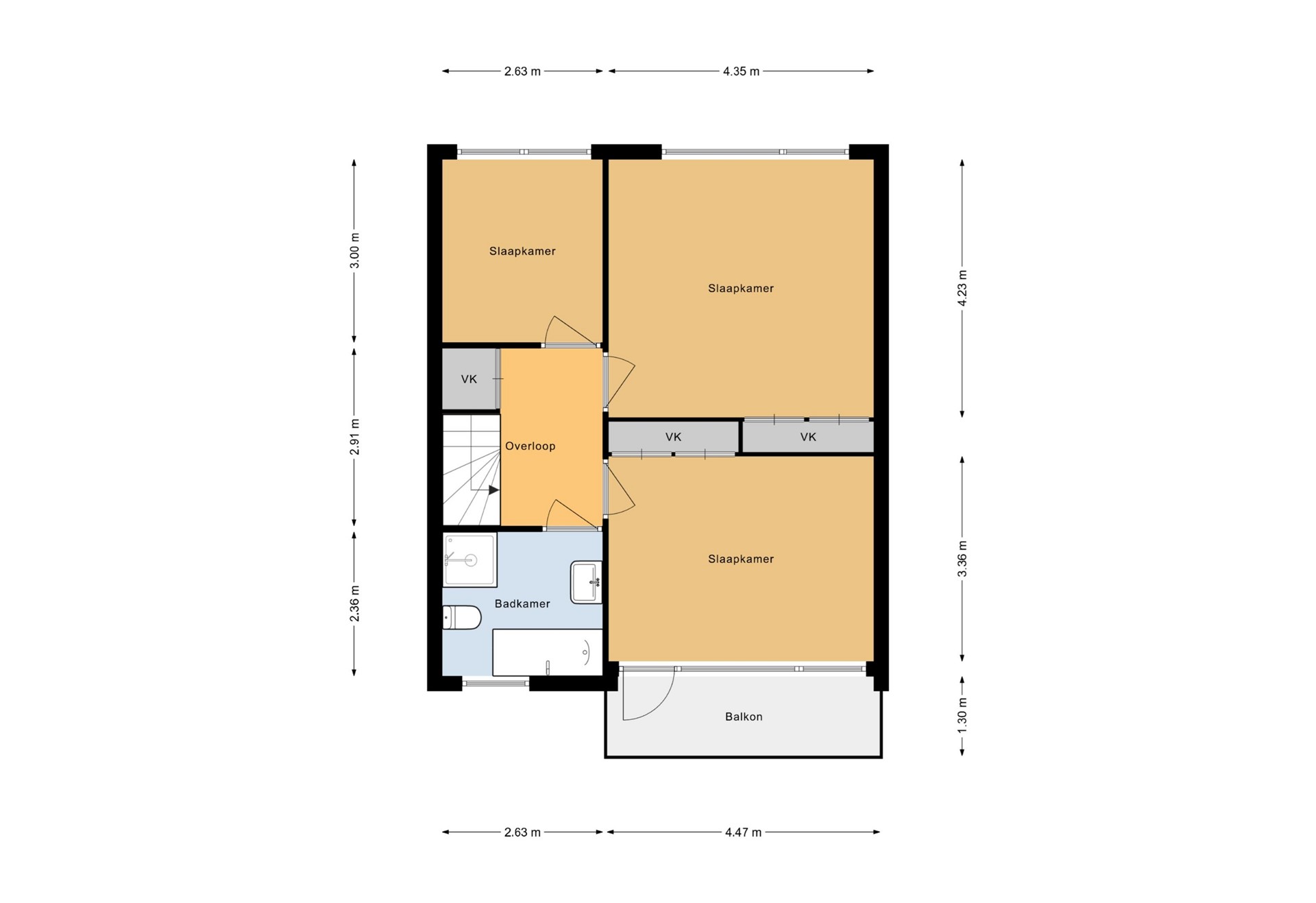
De eerste verdieping heeft drie slaapkamers, allen met laminaatvloer. De slaapkamer aan de voorzijde beschikt over een balkon en biedt uitzicht richting de duinen. De slaapkamer aan de achterzijde beschikt over een kastenwand en wastafel. De badkamer, ook op deze verdieping is volledig betegeld en voorzien van een ligbad, douche, tweede toilet en wastafelmeubel.
De tweede verdieping heeft dakkapellen aan de voor- en achterzijde. Dit zorgt voor extra ruimte en licht. Hier zijn dan ook een vierde en vijfde slaapkamer gerealiseerd. Op de voorzolder bevinden zich de cv-opstelling en de aansluitingen voor witgoed. Boven deze verdieping zit er nog een praktische vliering voor extra berging.
De achtertuin is gelegen op het noorden, de tuin is diep genoeg om in de zomermaanden lekker van de zon te genieten. Andere optie is om te vertoeven in de voortuin, met het fijne uitzicht daarbij. De tuin beschikt over een berging en een garage.
--------
De richtprijs van de Bremstraat 185 bedraagt € 549.000 kosten koper. Een bezichtiging vraag je makkelijk aan via Funda of onze website. Bij een online bezichtigingsaanvraag krijg je direct een link toegestuurd per mail en/of sms waarmee je zelf in onze agenda een afspraak in kunt plannen. De Bremstraat kan worden opgeleverd per oktober 2026.
--------
De Bremstraat is gelegen in de Duinbuurt. Wonen in de duinbuurt betekent wonen in een rustige en groene, ruim opgezette omgeving. De woning aan de Bremstraat is gelegen recht tegenover de donkere duinen, maar andere prachtige gebieden als Mariëndal en de grafelijkheidsduinen liggen op loopafstand net zoals de schone noordzeestranden. Supermarkten, scholen en kinderopvang zijn in deze omgeving voldoende aanwezig.
Indeling:
Begane grond: Voortuin met oprit en garage, entree woning, hal met meterkast, toilet en trapopgang, woonkamer met houtkachel, open keuken en toegang tot achtertuin.
Verdieping:
Overloop met vaste kast, drie slaapkamers waarvan één met balkon, badkamer met ligbad, douche, tweede toilet en wastafelmeubel.
2e verdieping:
Overloop met wastafel en aansluitingen voor CV ketel en wasmachine, vierde en vijfde slaapkamer en toegang tot een bergzolder via een vlizo-trap.