Beschrijving
NIEUW TE KOOP!!!
Boerhaavestraat 20 te Den Helder
Deze charmante hoekwoning met garage ademt historie en biedt volop potentie. De karakteristieke bouwstijl komt prachtig tot uiting in authentieke jaren ’30 details zoals glas-in-loodramen, kenmerkende hoge plafonds en een markante gevel met dubbele erker. Dankzij de aanbouw aan de achterzijde is de woning bovendien vergroot, wat zorgt voor extra leefruimte. Leefruimte die je ook buiten de woning vindt. Een heerlijk diepe achtertuin op het zuidwesten gelegen. De ligging aan de rand van het stadscentrum van Den Helder maakt het geheel extra aantrekkelijk, met alle voorzieningen binnen handbereik.
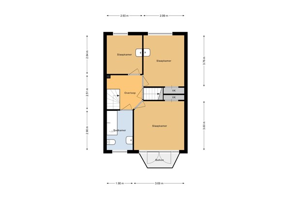
De woning vraagt op onderdelen om modernisatie, maar juist daarin schuilt de unieke kans om deze sfeervolle woning geheel naar eigen wens en stijl te transformeren. Tijdens een renovatie kom je mogelijk nog verrassende originele elementen tegen, zo bestaat het sterke vermoeden dat de oorspronkelijke en-suite deuren nog aanwezig zijn en weer in ere hersteld kunnen worden. Wat je in ieder geval krijgt, is een ruime en karaktervolle jaren ’30 woning op een perceel van 214 m² eigen grond, met circa 150 m² woonoppervlak. Op de eerste verdieping bevinden zich drie slaapkamers en de badkamer. De royale, open zolderverdieping biedt volop mogelijkheden en kan geheel naar eigen inzicht worden ingedeeld, bijvoorbeeld als een sfeervolle loftachtige slaapverdieping (zie impressiefoto).
Achter de woning ligt een flinke achtertuin, ruim voor binnenstedelijke begrippen, gunstig gelegen op de middag- en avondzon. En alsof dat nog niet genoeg is, beschikt de woning ook over een garage, direct achter de woning gelegen op een garageplein.
Kortom: een unieke kans om een karakteristieke woning met historie én toekomst naar je eigen hand te zetten en hier jouw ideale thuis te realiseren.
--------
De richtprijs van deze woning inclusief de garage bedraagt € 297.500 kosten koper. Gezien de huidige woningmarkt is het niet uitgesloten dat de uiteindelijke verkoopprijs hoger uitvalt. Een bezichtiging vraag je makkelijk aan via Funda of onze website. Bij een online bezichtigingsaanvraag krijg je direct een link toegestuurd per mail en/of sms waarmee je zelf in onze agenda een afspraak in kunt plannen. Uiteraard kan je ons ook altijd bellen om een bezichtiging in te plannen!
--------
De Boerhaavestraat is centraal gelegen in Den Helder, op loopafstand van het stadscentrum en het centraal station, dat goede verbindingen biedt naar steden zoals Alkmaar en Amsterdam. Nabijgelegen voorzieningen, zoals Albert Heijn Meeuwenstraat, diverse winkels, restaurants en andere centrumfaciliteiten, zijn snel bereikbaar. In de directe omgeving bevinden zich onder andere basisscholen en kinderopvang. Op korte fietsafstand liggen de (marine)haven en Willemsoord, met het Marinemuseum, Reddingmuseum en diverse eetgelegenheden. Het strand, de duinen en het Stadspark zijn eveneens dichtbij, wat mogelijkheden biedt voor recreatie en ontspanning. Deze locatie combineert centrum gemakken met de nabijheid van kust- en havenfaciliteiten.
LAAN MAKELAARS
voor de Kop van Noord-Holland
koop- en verkoopbegeleiding
van bestaande woningen