Beschrijving
NIEUW TE KOOP!!!
Vogelzand 4202B JULIANADORP
Vogelzand 4202B ligt in de groene en geliefde woonwijk Vogelzand in Julianadorp. Deze recent gemoderniseerde en fors uitgebouwde geschakelde woning staat op een ruime kavel van 481 m² eigen grond en is prettig gesitueerd midden op het perceel. Dat betekent een royale voortuin, een vrij gelegen achtertuin en volop privacy. Parkeren doe je gewoon op eigen terrein. De woning is gebouwd in 1987, verduurzaamd tot energielabel A, 20 zonnepanelen, en beschikt over een gebruiksoppervlak (wonen en overig inpandig) van circa 190 m².
--------
Vogelzand 4202B te Julianadorp wordt aangeboden met een richtprijs van € 650.000 k.k. Een bezichtiging plan je makkelijk (en het snelst) zelf in door een bezichtigingsaanvraag via Funda. Je ontvangt van ons dan gelijk een email en sms met de mogelijke tijdstippen waarop je kan reserveren. Uiteraard kan je ook contact opnemen met ons kantoor.
--------
Via de entree stap je direct binnen in de ruime keuken, die meteen in het oog springt. Een fijne binnenkomer. De keuken is modern uitgevoerd en voorzien van een groot kookeiland met inductiekookplaat, vaatwasser en Quooker en een complete apparatenwand met onder andere twee koel-vriescombinaties en twee combi-ovens. Een ruimte die uitnodigt om hier dagelijks gebruik van te maken. De living is royaal opgezet en biedt alle ruimte voor zowel een gezellige zithoek als een ruime eettafel. Deze ruimtes worden op een natuurlijke manier van elkaar gescheiden door een dubbele cinewall. Via de dubbel openslaande tuindeuren loop je zo de achtertuin in en onder de aangebouwde veranda, waardoor binnen en buiten mooi in elkaar overlopen. Aansluitend vind je de inpandig bereikbare bijkeuken met een keukenblok en het witgoed op werkhoogte. Vanuit hier loop je door naar de geïsoleerde garage met dubbele openslaande deuren naar de oprit. De garage is alvast voorbereid op een toilet; het inbouwreservoir is al geplaatst.
De begane grond is volledig voorzien van vloerverwarming, wat zorgt voor extra comfort.
Op de verdieping zijn vier slaapkamers aanwezig. De slaapkamer boven de aanbouw is royaal en sfeervol, met een puntvormige nok en extra lichtinval via de dakramen. Het vrijstaande ligbad in de kamer geeft deze ruimte een ontspannen, bijna hotelsuite-achtig gevoel. Een fijne plek om je echt even terug te trekken. De overige slaapkamers zijn goed van formaat en netjes afgewerkt met een doorlopende laminaatvloer en strak stucwerk, net als de rest van de woning. De badkamer is volledig betegeld en ingericht met een wastafelmeubel, tweede toilet en een inloopdouche. Via een vaste steektrap bereik je de geïsoleerde zolder. Een handige extra ruimte die je kunt gebruiken als speelruimte, hobbyruimte of gewoon voor extra opslag.
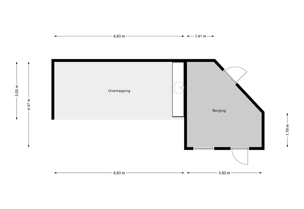
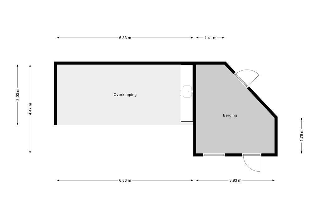
De woning ligt vrij op de kavel met een ruime voortuin en veel groen rondom. De achtertuin is gunstig gelegen, zonder directe achterburen, en biedt volop privacy. Door de afmetingen is er altijd wel een plek in de zon te vinden. Achter in de tuin staat een fraaie houten overkapping met berging, ideaal om beschut buiten te zitten of spullen op te bergen. Op warme dagen zorgt de buitendouche voor wat extra verkoeling.
Een ruime en comfortabele gezinswoning met veel leefruimte, een fijne tuin en gelegen in één van de prettigste wijken van Julianadorp aan Zee, dichtbij duinen, strand en alle dagelijkse voorzieningen.
Een bezichtiging plan je makkelijk (en het snelst) zelf in door een bezichtigingsaanvraag via Funda. Je ontvangt van ons dan gelijk een email en sms met de mogelijke tijdstippen waarop je kan reserveren. Uiteraard kan je ook contact opnemen met ons kantoor.
LAAN MAKELAARS
voor de Kop van Noord-Holland
koop- en verkoopbegeleiding
van bestaande woningen
Plattegronden
plan-vogelzand-4202b-1788-mk-julianadorp-nederland-bgg.jpg
plan-vogelzand-4202b-1788-mk-julianadorp-nederland-eerste.jpg
plan-vogelzand-4202b-1788-mk-julianadorp-nederland-tweede.jpg
plan-vogelzand-4202b-1788-mk-julianadorp-nederland-veranda.jpg