Beschrijving
NIEUW TE KOOP!!!
Doorzwin 5007 te Julianadorp
Op een kavel van 137m2 eigen grond met de achtertuin, vrij en op het Zuiden gelegen mogen wij jou deze leuke, verrassend ruime (95m2) eengezinswoning met 3 slaapkamers aanbieden. Centraal gelegen in Julianadorp met alle gewenste faciliteiten, duinen en strand, in de nabije omgeving en voorzien van een keurig energielabel C. Mogelijk jouw gewenste (door)start op de woningmarkt. Deze fijne woning, bijna 10 jaar in bezit van de huidige eigenaar, biedt naast een ruime en daglichtvolle living met open keuken op de begane grond op de eerste verdieping 2 prima slaapkamers, waarvan één over de gehele breedte van de woning, een geheel betegelde badkamer met douche én tweede toilet en nog een ruime 3e slaapkamer op de tweede verdieping die met een vaste trap vanaf te overloop is te bereiken. Zoals geschreven ligt de achtertuin pal op het Zuiden, keurig bestraat, voorzien van borders met beplanting en degelijk schuttingwerk rondom. Achterin de tuin staat een stenen tuinberging en de tuin is achterom bereikbaar. Achter de poort ligt een speelweide, midden tussen de bomen. Een parkachtig gevoel wanneer jij je achtertuin uitloopt.
--------
Doorzwin 5007 wordt aangeboden met een richtprijs van € 275.000 kosten koper. Gezien de huidige woningmarkt is het niet uitgesloten dat de uiteindelijke verkoopprijs hoger uitvalt. Een bezichtigingsafspraak maak je via ons kantoor of de bezichtigingsknop op Funda. Bezichtigingen worden op volgorde van binnenkomst ingepland.
--------
De wijk Doorzwin in Julianadorp staat bekend als een (kind)vriendelijke woonwijk met ruime gezinswoningen in fijne hofjes. De woningen zijn solide gebouwd in de jaren '80 en altijd zeer geliefd. De wijk is centraal gelegen waardoor alle gewenste faciliteiten op wandel- of fietsafstand bereikbaar zijn. Denk hierbij aan kinderopvang, basisscholen en voortgezet onderwijs maar ook winkelcentra, de oude dorpskern van Julianadorp en sportvelden maar ook duinen en strand. Julianadorp kent 2 grotere winkelcentra aan de Noord en Zuidkant van het dorp en een gezellig dorpskern met een diversiteit aan restaurants en verswinkels.
--------
INDELING
--------
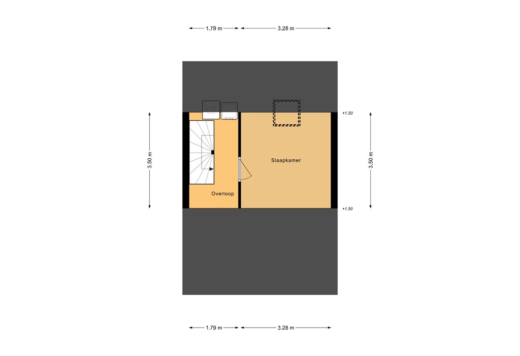
Voortuin, entree woning in de hal met meterkast. Vanuit de hal kom je in de living met de woonkamer aan de voorzijde en de keuken aan de achterzijde op de begane grond. De keuken is in een hoekopstelling geplaatst en voorzien van diverse inbouwapparatuur. Vanuit de woonkamer kom je in een achter halletje waar je het toilet als ook de deur naar de achtertuin vindt. De achtertuin, enkele jaren geleden opnieuw bestraat, ligt pal op het Zuiden en biedt een stenen berging met elektra achterin de tuin, en een achterom. Op de eerste verdieping zijn er twee prima slaapkamers. De hoofdslaapkamer aan de voorzijde beslaat zelfs de gehele breedte van de woning. De geheel betegelde, moderne badkamer is voorzien van een keurig wastafelmeubel, een inloopdouche en een tweede toilet. Er is zowel mechanische ventilatie als ook een raam dat open kan. Vanaf de overkoop ga je met een vaste trap naar de tweede verdieping. Hier vind je een praktische voorzolder voor berging maar ook CV-ketel (2020) en de aansluitingen voor het witgoed. Vanaf de voorzolder kom je in de derde, ook weer ruime, slaapkamer.
Ben jij op zoek naar je (eerste) eigen woning en wil je begin 2026 al kunnen wonen? Kom dat zeker snel kijken bij Doorzwin 5007 te Julianadorp!
LAAN MAKELAARS
voor de Kop van Noord-Holland
taxaties-aankoop-verkoop
van bestaande woningen
Indeling
Entree, hal met meterkast v.v. nieuwe groepenkast. Ruime straatgerichte woonkamer met laminaatvloer en strak afgewerkte wanden. De open keuken is in een hoekopstelling geplaatst en voorzien van al het gewenste inbouwapparatuur als een RVS schouw, inductie kookplaat, vaatwasser op hoogte en koelkast. Apparatuur allemaal van het merk Siemens. Aansluitend de achterhal richting de tuin met het toilet. Op de eerste verdieping zijn er 2 prima slaapkamers. Aan de voorzijde over de gehele breedte van de woning. Ook op deze verdieping de eenvoudige badkamer met witte wandtegel, wastafel en douche. Een vaste trap brengt je naar de grote zolder. Hier een riante derde slaapkamer. Alle slaapkamers zijn voorzien van een laminaatvloer. Achter de woning ligt een diepe, goed onderhouden achtertuin. Pal op het zuiden en voorzien van een stenen berging en achterom.
Plattegronden
plan-doorzwin-5007-1788-sb-julianadorp-176627914_doorzwin_5007_beganegrond_first_design_20250914_aa7b99.jpg
plan-doorzwin-5007-1788-sb-julianadorp-176627914_doorzwin_5007_eerste_verdiepi_first_design_20250914_1542dd.jpg
plan-doorzwin-5007-1788-sb-julianadorp-176627914_doorzwin_5007_tweede_verdiepi_first_design_20250914_63a5cb.jpg
plan-doorzwin-5007-1788-sb-julianadorp-176627914_doorzwin_5007_schuur_first_design_20250914_3d6846.jpg