Beschrijving

NIEUW TE KOOP!!!
Ruyghweg 15 te Den Helder

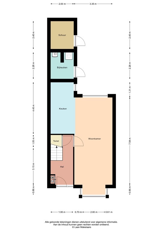
Deze prachtige tussenwoning met erker heeft werkelijk alles wat je zoekt! Een korte en treffende omschrijving van deze woning: volledig instapklaar, sfeervol, en met veel praktische ruimte. Bij binnenkomst valt direct de ruime en lichte hal op, met een prachtig trappenhuis en daaronder een modern toilet. De woonkamer is warm en gezellig, met een mooie houten vloer en strakke wandafwerking. De keuken is modern en biedt de benodigde apparatuur. Verder is er een praktische bijkeuken met aansluitingen voor witgoed en de CV-ketel.

Via de tuindeur bereik je de achtertuin, die recent is vergroot door de aankoop van extra grond. De tuin is nu heerlijk ruim en voorzien van sierbestrating en mooie houten palen ter afscheiding. Daarnaast is er een recent aangebouwde stenen berging, compleet met elektra, ideaal voor het opbergen van fietsen, gereedschap en tuinbenodigdheden.

De verdieping is te bereiken via het trappenhuis in de hal. Op de overloop heb je toegang tot drie slaapkamers, die allen netjes afgewerkt zijn met fraaie wand- en vloerafwerking. Aan de achterzijde is een nieuw kunststof dakkapel geplaatst. De badkamer, aan de voorzijde, beschikt over een ruime inloopdouche en een groot wastafelmeubel. De badkamer is voorzien van mechanische afzuiging.

Deze woning biedt alles wat je nodig hebt voor zorgeloos wonen en is op korte termijn beschikbaar. Ben jij op zoek naar een instapklare woning in een fijne buurt omgeving nabij het centrum en centraal station. Wacht dan niet te lang en plan je bezichtiging in!

--------
Een bezichtiging vraag je makkelijk aan via Funda of onze website. Bij een online bezichtigingsaanvraag krijg je direct een link toegestuurd per mail en/of sms waarmee je zelf in onze agenda een afspraak in kunt plannen. Zijn alle plekken gevuld zet je zelf dan zeker op de wachtlijst. Wij nemen dan snel contact met je op. Uiteraard kan je ons ook altijd bellen om een bezichtiging in te plannen!
-------- 

De Ruyghweg 15 te Den Helder is gelegen aan het begin van de Ruyghweg. Het stadscentrum met diens voorzieningen en het centraal station zijn op loopafstand van de woning gelegen. De dichtstbijzijnde supermarkt is de Albert Heijn, deze bereik je lopend binnen 1 minuut! Scholen en kinderopvang zijn in de omgeving volop aanwezig. Strand en duinen liggen op fietsafstand!

Bijzonderheden uitgevoerd sinds aankoop.
- Nieuw dak bitumen 2021 (geïsoleerd met PIR platen)
- Nieuw dakkapel achterzijde 2021
- Vervangen dak erker 2021
- Extra ventilatieroosters aangebracht achtergevel.

Kenmerken