Beschrijving

NIEUW TE KOOP!!!
Molenstraat 30 te Den Helder

Laat je niet verrassen door de voorgevel. Achter deze woning schuilt een verrassend ruime indeling op een perceel van 82 m², midden in het centrum. De woning biedt circa 80 m² woonoppervlak, heeft energielabel C, beschikt over 7 zonnepanelen en telt drie slaapkamers. De badkamer bevindt zich op de verdieping en is voorzien van een tweede toilet.

In de basis is al veel werk gedaan. De begane grond is uitgevoerd met een betonnen vloer en afgewerkt met laminaat. Wanden en plafonds zijn strak gestuct en de keuken is modern uitgevoerd in hoogglans, voorzien van inbouwapparatuur. Ook het toilet op de begane grond is netjes afgewerkt. De aangebouwde stenen berging is praktisch en beschikt over aansluitingen voor de wasmachine en ruimte voor bijvoorbeeld fietsen.

Op de eerste verdieping bevinden zich drie slaapkamers en de badkamer, uitgevoerd met douche, wastafel en tweede toilet. Boven de slaapkamers is nog een vliering/bergzolder te bereiken. De achtertuin is gunstig gelegen op de middag- en avondzon en biedt daarbij veel privacy.

--------
De richtprijs van deze woning bedraagt € 229.000 kosten koper. Een bezichtiging vraag je eenvoudig aan via Funda of onze website. Na een online aanvraag ontvang je direct een link per mail en/of sms waarmee je zelf een moment in onze agenda kunt plannen. Zijn alle plekken al gevuld? Zet jezelf dan zeker op de wachtlijst. Wij nemen dan snel contact met je op. Uiteraard kun je ons ook bellen om een bezichtiging in te plannen.
--------

De ligging is prettig, in de Molenstraat met diverse voorzieningen op korte afstand. Winkels, scholen en openbaar vervoer zijn eenvoudig bereikbaar. Ook de zeedijk en Willemsoord met horeca, cultuur en ontspanning liggen op loopafstand. Het strand is per fiets in circa 15 minuten bereikbaar.

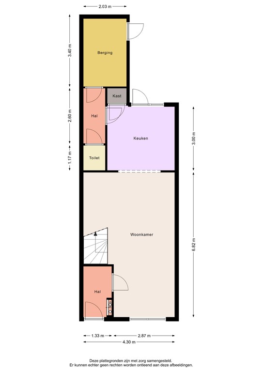
INDELING:
begane grond: entree, hal met meterkast, woonkamer met trap naar verdieping, open keuken en vervolgens de aanbouw met toilet en berging.
verdieping: overloop drie slaapkamers en badkamer.
hierboven nog een bergzolder via vlizotrap te bereiken.

Kenmerken