Beschrijving

NIEUW TE KOOP!!!
Marsdiepstraat 147 te Den Helder

3-kamer appartement met lift en garage. 

Gelegen nabij het vernieuwde winkelhart van Nieuw Den Helder, op fietsafstand van het centrum en ook bos, duinen en strand mogen wij u dit duurzame (energielabel A) en verrassend ruime 3-kamer appartement op de eerste verdieping (tweede woonlaag) aanbieden. Bij dit appartement behoort tevens een eigen garagebox. In het, overigens keurige portiek vind u naast de trapopgang ook nog een lift. Een fijn appartement op een prettige en centraal gelegen locatie!

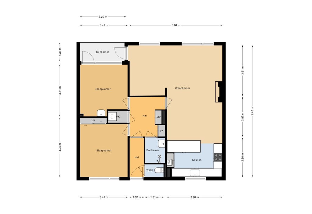
Het appartement biedt ruim 90m2 aan bruikbaar woonoppervlak en is oorspronkelijk opgeleverd met 3 slaapkamers. Een van de slaapkamers is door de laatste eigenaar bij de woonkamer betrokken waardoor hier een riante L-vormige living is ontstaan met fraaie open keuken, geplaatst in een U opstelling met ontbijtbar en voorzien van al het gewenste apparatuur. Blijven er 2 ruime slaapkamers over, één aan de galerijkant gelegen en een tweede aan het inpandige balkon die vanaf de woonkamer is te bereiken. De hal biedt toegang tot alle vertrekken waaronder ook de geheel betegelde douche en separaat het toilet. Tevens zijn er diverse inbouwkasten waaronder een witgoedkast. 

Recent zijn een groot deel van de kozijnen vervangen door kunststof en is het glaswerk vervangen door HR+ glas. Aan de buitenzijde van het appartement (straatkant) zijn er elektrische zonnescreens aan de gevel aangebracht. De garage, behorende bij het appartement, is gelegen aan de achterzijde, via de openbare weg toegankelijk en biedt een elektrische deur. 

--------
De richtprijs van dit appartement, inclusief garage bedraagt € 255.000 kosten koper. Een bezichtiging vraag je makkelijk aan via Funda of onze website. Bij een online bezichtigingsaanvraag krijg je direct een link toegestuurd per mail en/of sms waarmee je zelf in onze agenda een afspraak in kunt plannen. Zijn alle plekken gevuld zet je zelf dan zeker op de wachtlijst. Wij nemen dan snel contact met je op. Uiteraard kan je ons ook altijd bellen om een bezichtiging in te plannen!
--------

LAAN MAKELAARS
voor de Kop van Noord-Holland

koop- en verkoopbegeleiding
van bestaande woningen

Kenmerken