Beschrijving
NIEUW TE KOOP!!!
M.H. Trompstraat 2 te Den Helder
Plan nu helemaal zelf je bezichtiging in door een bezichtigingsaanvraag via Funda! Ieder moment van de dag!
Starters op de woningmarkt opgelet! Nabij het centrum van Den Helder bieden wij deze hartstikke leuke starterswoning aan. Dit jaar nog te betrekken! Recent compleet gemoderniseerd en verduurzaamd tot een energielabel A. Een hoekwoning die niet zomaar een gelijke kent. Speelse indeling, verrassend ruim op de begane grond met de mogelijkheid tot een extra slaapkamer, 2 knusse slaapkamers op de verdieping en veel bergruimte. Onderhoudsvriendelijk, zowel van binnen als van buiten. Ben je veel op pad? Geen omkijken naar de tuin. Eigenlijk biedt deze woning alle gemakken van een appartement maar dan toch met beide benen, en de voordeur, op de grond. Deze in 1899 gebouwde en recent gemoderniseerde woning biedt een woonoppervlak van 75m2 op een kavel van 66m2 eigen grond.
--------
M.H. Trompstraat 2 te Den Helder wordt aangeboden met een richtprijs van € 192.500 k.k. Gezien de huidige woningmarkt is het niet uit te sluiten dat de uiteindelijke verkoopprijs hoger uitvalt. Via een bezichtigingsaanvraag op Funda plan je gemakkelijk zelf je bezichtiging in! Ieder moment van de dag!
--------
De M.H. Trompstraat is gelegen in de van Galenbuurt op loopafstand van het vernieuwde centrum van Den Helder, het Stadspark en de Noordzeedijk. Een fijne woonomgeving met alle noodzakelijke faciliteiten als scholen, kinderopvang, supermarkten en winkels in de directe omgeving. Hier vind je vele woningen met de kenmerkende uitstraling van de vooroorlogse bouwperiode waarbij deze woning met dezelfde uitstraling nieuw is opgebouwd. Een omgeving waar jong én oud zich goed kan vinden. Goed aan te fietsen is zowel de (marine)haven als ook de veerboot naar Texel.
--------
INDELING
--------
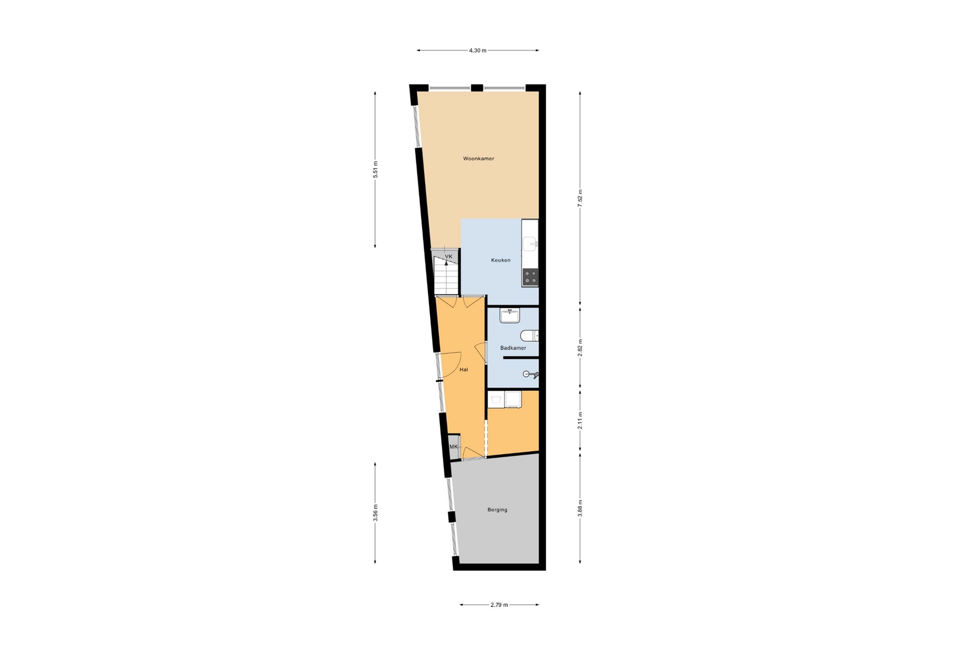
Entree in een ruime hal die toegang biedt tot de living, badkamer, wasruimte en berging op de begane grond. Aan de voorzijde een ruime, lichte woonkamer met open keuken voorzien van al het gewenste inbouwapparatuur. De wanden zijn gestukt en op de vloer ligt een keurige laminaatvloer. Het sanitair is ruim, licht en fris. Hier vind je een wastafelmeubel, toilet en inloopdouche. Aansluitend een praktische witgoedruimte met daarachter, inpandig een flinke en afgesloten bergruimte die ook als begane grond slaapkamer kan dienen. Een vaste trap brengt je naar de verdieping met 2 knusse slaapkamers in de nok waar door middel van dakkapellen of het rechtop trekken van de achtergevel nog veel extra ruimte te realiseren valt indien wenselijk.
Ben jij op zoek naar een super starterswoning, centraal gelegen die nét even anders is dan de standaard? Dan ben je hier aan het goede adres.
Maak snel een afspraak voor een bezichtiging. Dit kan heel eenvoudig door een aanvraag via Funda waarna je direct, of wanneer het jou uitkomt, via de mail je eigen afspraak kunt inplannen.
LAAN MAKELAARS
voor de Kop van Noord-Holland
koop- en verkoopbegeleiding
van bestaande woningen