Beschrijving
NIEUW TE KOOP!!!
Dennenstraat 41 Den Helder
Locatie? - Check
Perceel? - Check
Ruimte? - Check
De kans om een woning op de juiste locatie met een fraai woon- en perceeloppervlak helemaal eigen te maken? Dubbelcheck!
Hier in de Dennenstraat, een van de meest geliefde woonwijken nabij bos, duinen en strand, bieden wij jullie de kans op jarenlang ultiem wooncomfort! Met ruim 130m2 aan woonoppervlak op een kavel van maar liefst 236m2 eigen grond is er meer dan genoeg ruimte om een groot gezin te vestigen en lang niet meer te vertrekken. Met dezelfde reden kocht de laatste bewoner in 1977 deze woning om bijna vijftig jaar later een appartement te gaan betrekken. Dat zegt toch meer dan genoeg!
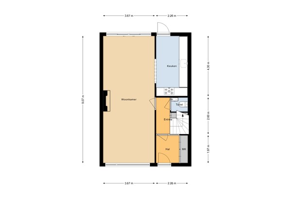
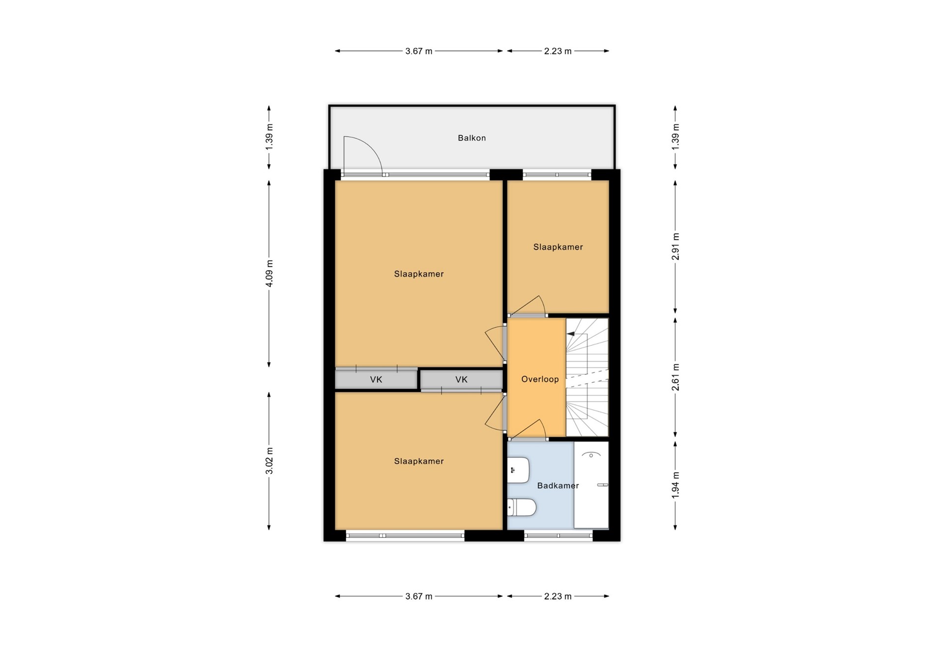
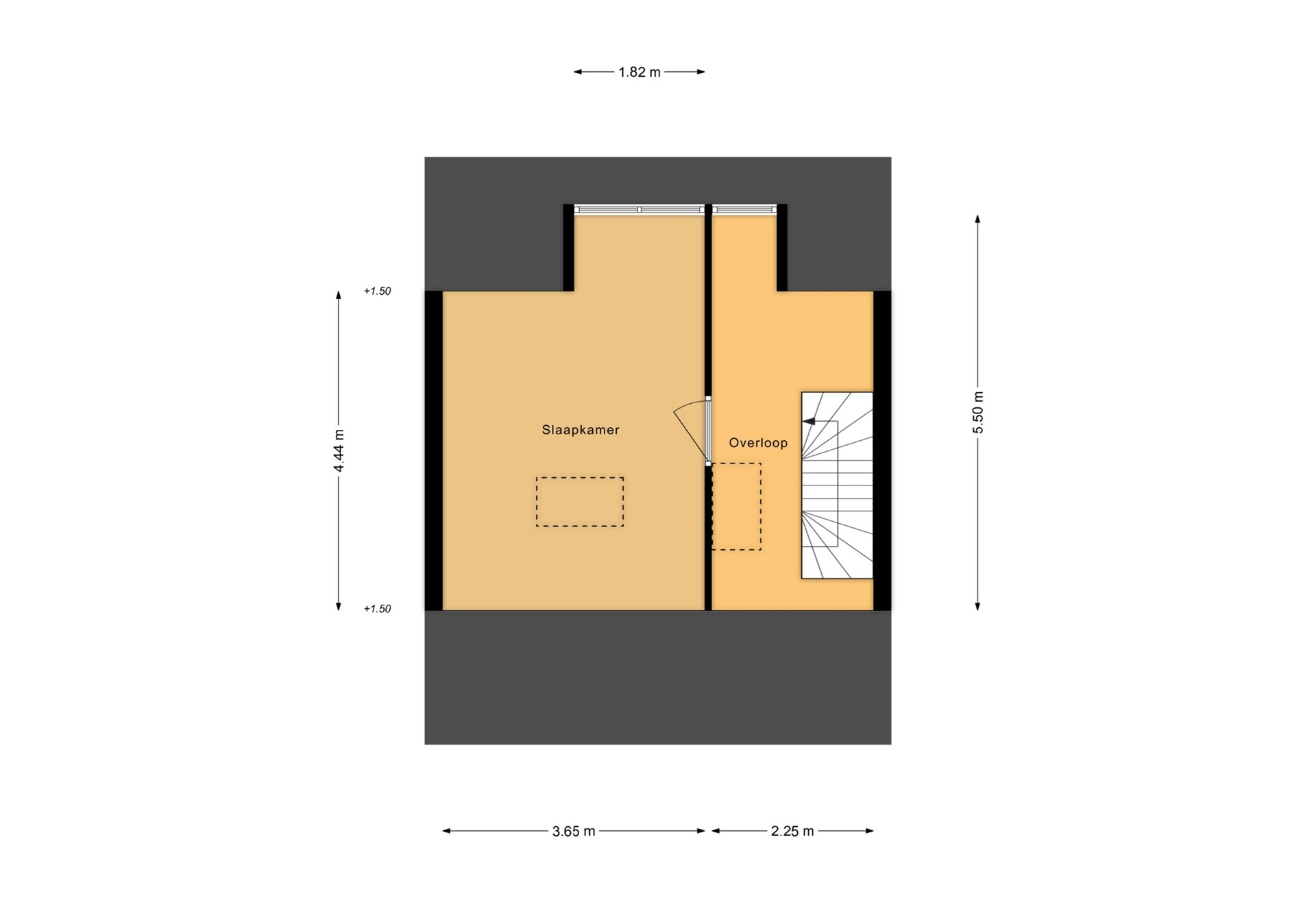
Nu, na bijna 50 jaar zijn wij op zoek naar een ambitieuze, nieuwe eigenaar die kijkt met de juiste ogen. Niet enkel naar de plaatjes maar vooral naar de potentie de deze woning biedt. En die potentie is er. Zo is de toch al ruime woning op de begane grond vergroot door middel van een aanbouw met een fraaie schuifpui, het toilet op de begane grond is niet lang geleden vernieuwd, er is er een dakkapel op de zolder geplaatst en de woning is geheel voorzien van kunststof kozijnen. Op de eerste verdieping vind je naast de badkamer 3 prima slaapkamers waarvan één met toegang tot een balkon. Een vaste trap vanaf de overloop brengt je naar de tweede verdieping op de voorzolder met daar de aansluitingen voor het witgoed en toegang naar een ruime vierde slaapkamer, zoals gezegd met dakkapel. De woning wordt verwarmd door centrale verwarming en de eerlijkheid gebiedt ons te zeggen dat de CV-ketel deze eerste koude maanden van het jaar niet goed is doorgekomen. Deze ga je moeten vervangen of nog beter, je maakt de duurzaamheidsslag naar een hybride vorm of warmtepomp. Kansen genoeg!
Ook als je een tuinliefhebber bent biedt het perceel volop mogelijkheden. De afmetingen van de achtertuin zorgen ervoor dat je altijd een plek in de zon moet kunnen vinden als deze schijnt maar ook een schaduwplekje te vinden moet zijn als het net even te gek wordt. De tuin is achterom bereikbaar en er staat in het hart van de tuin een stenen tuinberging met daarachter een houten blokhut.
--------
Dennenstraat 41 te Den Helder wordt aangeboden met een richtprijs van € 359.000 k.k. Een bezichtiging plan je makkelijk (en het snelst) zelf in door een bezichtigingsaanvraag via Funda. Je ontvangt van ons dan gelijk een email en sms met de mogelijke tijdstippen waarop je kan reserveren. Uiteraard kan je ook contact opnemen met ons kantoor om een afspraak in te plannen.
--------
De woning is gelegen in de Dennenstraat, een vriendelijke (eenrichting) straat nabij de Grafelijkheidsduinen, het bos, strandopgang Duinoord, de Helderse Vallei maar ook het vernieuwde centrum van Nieuw Den Helder. Je vindt hier veelal jonge gezinnen en ouderen die zo lang mogelijk in de omgeving willen blijven wonen. Het verloop is dan ook minimaal. Voorzieningen zijn er volop. Het vernieuwde centrum van Nieuw Den Helder is op wandel/fietsafstand bereikbaar en biedt naast de bekende winkelcentra ook vele dag- en verswinkels. In de omgeving vind je verder diverse sportfaciliteiten, kinderopvang en (basis)scholen.
Zie jij de potentie en pak jij deze kans met beide handen aan? Een bezichtiging plan je makkelijk (en het snelst) zelf in door een bezichtigingsaanvraag via Funda. Je ontvangt van ons dan gelijk een email en sms met de mogelijke tijdstippen waarop je kan reserveren. Uiteraard kan je ook contact opnemen met ons kantoor om een afspraak in te plannen.
LAAN MAKELAARS
voor de Kop van Noord-Holland
koop- en verkoopbegeleiding
ven bestaande woningen