Beschrijving
NIEUW TE KOOP!!!
Californiestraat 57 te Den Helder
Een starterswoning zoals een starterswoning bedoeld is. Betaalbaar, verzorgd en helemaal klaar voor jouw eerste stap op de woningmarkt.
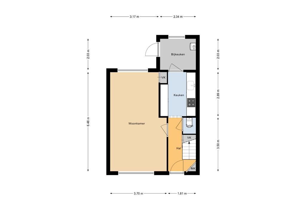
Gelegen nabij het centrum van Den Helder, op korte afstand van Willemsoord en zelfs op fietsafstand van de (marine)haven, woon je hier centraal met alle voorzieningen binnen handbereik. Ook het strand is in Den Helder nooit ver weg. De woning is knus, maar verrassend praktisch ingedeeld. Met maar liefst drie slaapkamers en een badkamer op de verdieping heb je meer ruimte dan je op het eerste gezicht zou verwachten. Daarboven bevindt zich nog een handige bergzolder, ideaal voor je koffers, kunstkerstboom of extra opslag. Op de begane grond vind je een functionele, keurige keuken met (inbouw)apparatuur. Aansluitend is er een bijkeuken met de aansluitingen voor het witgoed en de CV-ketel (2023). De woning is rondom voorzien van kunststof kozijnen met HR-glas, de voorgevel is in 2021 opnieuw gevoegd en op het dak liggen zonnepanelen. Zowel op de begane grond als op de verdieping liggen nette laminaatvloeren en het schilderwerk is recentelijk fris uitgevoerd. De achtertuin is precies wat je zoekt: onderhoudsvriendelijk aangelegd met sierbestrating, een berging en een achterom. De ruime achtertuin heeft een ideale zonligging voor een zomerse barbecue met vrienden of een gezellige borrelavond, zonder dat je elk weekend hoeft te tuinieren. De totale grootte van de kavel is 124m2 en eigen grond!
Het afgelopen jaar is de woning gerenoveerd. Nieuwe laminaat vloeren in de gang, keuken en huiskamer. Zowel de binnendeuren en kozijnen als de wanden en plafonds zijn fris geschilderd. De nette keuken is voorzien van een ontbijtbar, gaskookplaat met afzuigkap en nieuwe inbouwkoelkast. Dit is een woning waar je weinig aan hoeft te doen om te starten, maar die tegelijkertijd alle ruimte biedt om er stap voor stap je eigen plek van te maken. En met een keurige prijs is dit écht een kans om als starter een fijne, solide basis te leggen.
Kortom: een mooie mogelijkheid aan de Californiestraat, misschien wel de kans die jij met beide handen aangrijpt.
--------
De richtprijs van deze woning bedraagt € 229.000 kosten koper. Een bezichtiging vraag je makkelijk aan via Funda of onze website. Bij een online bezichtigingsaanvraag krijg je direct een link toegestuurd per mail en/of sms waarmee je zelf in onze agenda een afspraak in kunt plannen. Zijn alle plekken gevuld zet je zelf dan zeker op de wachtlijst. Wij nemen dan snel contact met je op. Uiteraard kan je ons ook altijd bellen om een bezichtiging in te plannen!
--------
De Californiestraat is gelegen in het centrum van Den Helder en maakt onderdeel uit van het vernieuwde Stadshart. Centraler kan je bijna niet wonen. Op loopafstand van de woning vind je supermarkten, het stadscentrum, bruisend Willemsoord, kinderopvang, basisonderwijs en diverse zorgfaciliteiten als huisartsen, fysio praktijk Stadshart en tandartsen. Op enkele fietsminuten (ook goed aan te wandelen) bereik je het centraal station maar ook de (marine)haven en de boot naar Texel en ook het strand is in Den Helder nooit ver weg. Een fijne plek om thuis te komen na te hebben gewerkt of genoten van al het moois Den Helder te bieden heeft.
LAAN MAKELAARS
voor de Kop van Noord-Holland
koop- en verkoopbegeleiding
van bestaande woningen
Plattegronden
plan-californiestraat-57-den-helder-182433970_californiestraa_bgg_first_design_20260218_a6e355.jpg
plan-californiestraat-57-den-helder-182433970_californiestraa_1_first_design_20260218_8e8561.jpg
plan-californiestraat-57-den-helder-182433970_californiestraa_vliering_first_design_20260218_ace114.jpg
plan-californiestraat-57-den-helder-182433970_californiestraa_overkappingber_first_design_20260218_2dbce0.jpg