Beschrijving
NIEUW TE KOOP!!!
Burgemeester Houwingsingel 107 te Den Helder
Wakker worden met uitzicht op een mooie singel in een groene woonomgeving plus daarbij het geluid van vogeltjes en eendjes. Het kan hier aan de Burgemeester Houwingsingel. Met genoegen mogen wij u deze topper van een tussenwoning aanbieden, zeer leuk ingericht met een voor- en achterkamer. De voorkamer is gesitueerd aan de straatzijde en de achterkamer is grenzend aan de tuin, hier bevind zich de woonkeuken met kookschiereiland. Via een praktische bijkeuken met witgoed is er toegang tot de berging en de diepe achtertuin, die is gelegen op het noorden.
De verdieping heeft vier slaapkamers te bieden, waarvan drie van zeer respectabel formaat en een vierde welke als logeer-, kleed-, of werkkamer kan worden gebruikt. Ook op deze verdieping de badkamer, welke is voorzien van een wastafel en een douche. De tweede verdieping is een bergzolder te bereiken via een vlizotrap, er zijn hier mogelijkheden om een vijfde slaapkamer te realiseren. Door de nokhoogte van 2.20 en de mogelijkheid voor een vaste trap zijn er voldoende uitbreidingsmogelijkheden.
Kortom is dit in instapklare woning in een groene en prettige woonomgeving, waar je vele jaren onbezorgd kunt wonen.
--------
De woning aan de Burgemeester Houwingsingel wordt u aangeboden met een richtprijs van € 245.000 k.k. u kunt zich vanaf heden aanmelden voor een bezichtiging, bezichtigingen worden uitsluitend ingepland op volgorde van binnenkomst.
--------
De Burgemeester Houwingsingel is een straat aan de rand van 'de Vogelbuurt'. Dit is een ruim opgezette wijk en bovendien een groene en kindvriendelijke omgeving. Op korte afstand van de woning zijn meerdere scholen en kinderopvang te vinden. In de directe omgeving vind je een Albert Heijn supermarkt en op fietsafstand het vernieuwde stadscentrum en het Centraal Station.
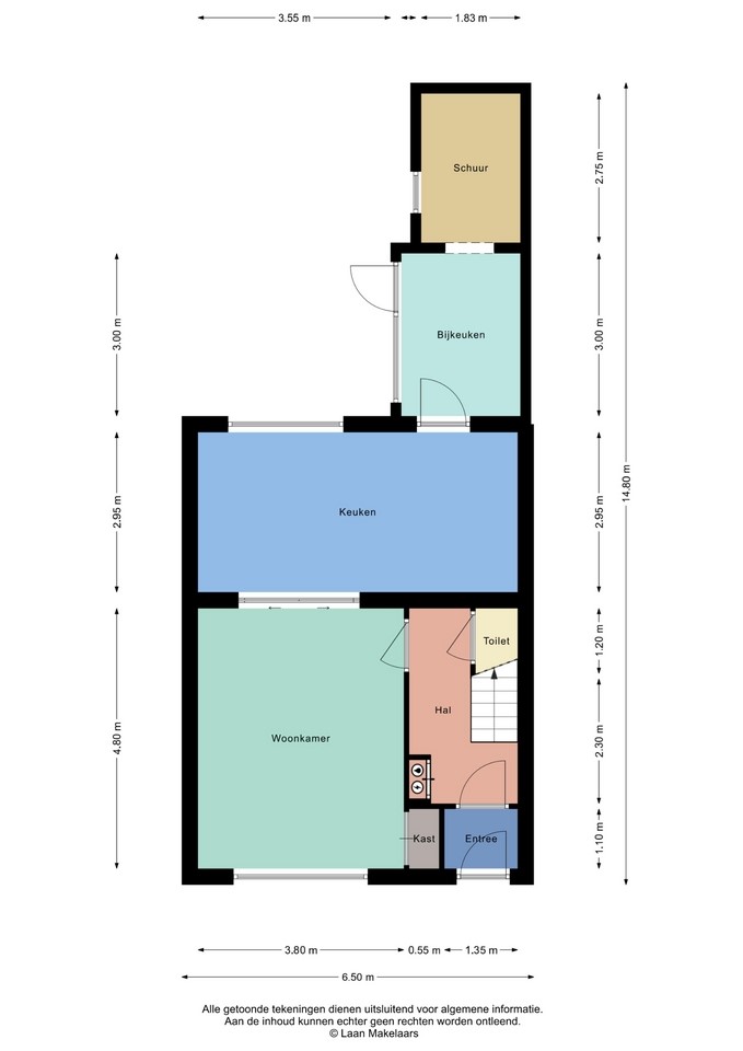
INDELING:
voortuin, entree met tochtportaal, hal met meterkast en trapopgang, toilet en toegang tot de woonkamer. De woonkamer is verdeeld in een voor en achterkamer. Achter zit de woonkeuken met praktische bijkeuken. Tot slot de berging en de achtertuin.
De verdieping biedt een overloop, vier slaapkamers en een badkamer.
De tweede verdieping biedt een bergzolder en mogelijkheden tot nog een kamer.
BIJZONDERHEDEN:
De woning biedt een airco systeem, waarmee kan worden verwarmd en gekoeld. Handig in combinatie met de 7 zonnepanelen.