Beschrijving
NIEUW TE KOOP!!!
Binnenhaven 63 te Den Helder
Een uniek grachtenpand dat je verrast vanaf het moment dat je binnenstapt
Van buiten oogt dit karakteristieke, beeldbepalende grachtenpand bescheiden, maar schijn bedriegt. Achter de historische gevel ontvouwt zich maar liefst meer dan 130 m² aan sfeervol en stijlvolle woonruimte, verdeeld over een ruime woonkamer, open keuken, 3 slaapkamers en 2 badkamer. Een speelse indeling en prachtige originele details die dit huis een ziel geven.
--------
De richtprijs van deze woning bedraagt € 319.000 kosten koper. Een bezichtiging vraag je makkelijk aan via Funda of onze website. Bij een online bezichtigingsaanvraag krijg je direct een link toegestuurd per mail en/of sms waarmee je zelf in onze agenda een afspraak in kunt plannen. Zijn alle plekken gevuld zet je zelf dan zeker op de wachtlijst. Wij nemen dan snel contact met je op. Uiteraard kan je ons ook altijd bellen om een bezichtiging in te plannen!
--------
Je komt binnen op de eerste verdieping via een charmant trapje naar de voordeur. De hal met glas-in-lood ramen en hoog plafond zet meteen de toon: hier is sfeer de standaard. Vanuit de hal stap je de landelijke woonkeuken in, compleet met een Belgisch hardstenen aanrechtblad, grote gootsteen, solitair 6-pits fornuis, originele glazenkast en openslaande deuren naar het balkon. Door de en suite deuren, uiteraard met glas-in-lood, bereik je de zitkamer. Dankzij het hoge authentieke plafond, de oude schouw met gashaard en het verhoogde zicht op de straat is dit een plek waar je meteen wilt zitten op de bank.
Een verdieping lager bevindt zich het verrassend ruime souterrain, met een royale slaapkamer van ca. 29 m², inloopkast, daglicht aan zowel de straat- als tuinzijde én een ruime badkamer in klassieke zwart-wit tinten, voorzien van ligbad, wastafelmeubel en toilet. Een heerlijk privéverblijf binnen het huis.
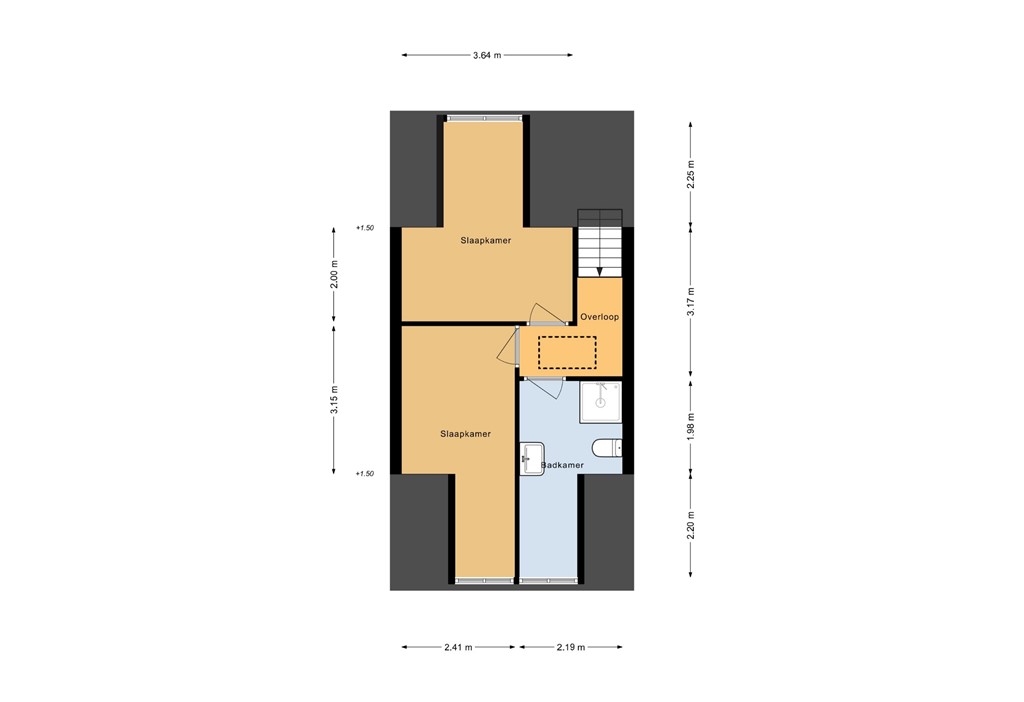
Op de tweede verdieping vind je nu twee verzorgde slaapkamers, voorzien van dakkapel. De derde slaapkamer is recent verbouwd tot een tweede moderne badkamer, ideaal voor een groter huishouden of logés. Bergruimte is er ook, via een vlizotrap bereik je de kleine bergzolder.
Dan de buitenruimte: de achtertuin op het zuidwesten ligt in de luwte. Onderhoudsvriendelijk aangelegd en met veel privacy. Hier staat nu een recent nieuw gebouwde, geïsoleerde garage/loods van maar liefst 32 m2. Perfect als werkruimte, hobbyruimte of extra opslag.
--------
De Binnenhaven is gelegen nabij het centrum van Den Helder en ook het bruisende Willemsoord met bioscoop, theater, dag- en nachthoreca. Alle gewenste faciliteiten als winkels, zorg en onderwijs zijn in de buurt te vinden. Zowel de (marine)haven als ook de boot naar Texel liggen op fietsafstand. Een zondagse wandeling brengt je zo via de kade richting Noordzeedijk. Al met al een fijne plek om te wonen.
--------
Het pand werd oorspronkelijk gebouwd rond 1853, maar is door de jaren heen grondig en liefdevol onderhouden en gemoderniseerd. De woning is voorzien van dubbele beglazing en traditioneel gebouwd met gemetselde gevels, isolatie en gips aan de binnenzijde, houten spanten en geïsoleerde vloeren. Ook zijn de dakplaten vervangen, geïsoleerd en zijn er nieuwe pannen aangebracht. Twee gashaarden zijn aanwezig, maar worden momenteel niet gebruikt. De woning wordt verwarmd door middel van centrale verwarming gestuurd door een HR CV-combiketel.
En dan nog iets bijzonders: dit huis is een Beschermd Stadsgezicht van Den Helder. Een unieke kans om te wonen in een stukje historie, maar wél met hedendaags wooncomfort.
Ben jij op zoek naar een sfeervol, historisch én verrassend ruim grachtenpand? Dan zou dit wel eens jouw nieuwe thuis kunnen zijn. Kom kijken, en laat je verrassen door de ruimte, het licht en de charme van dit bijzondere huis en de mogelijkheden van de ruime loods/garage.
LAAN MAKELAARS
voor de Kop van Noord Holland
Plattegronden
Plattegond Binnenhaven 63 begane grond.jpg
Plattegrond Binnenhaven 63 1e verdieping.jpg
Plattegrond Binnenhaven 63 2e verdieping.jpg
Plattegrond Binnenhaven 63 zolder.jpg
Plattegrond Binnenhaven 63 garage.jpg